Terug naar overzicht
Montfort

Hannes Kempkensweg 34

€ 475.000, - k.k.

Aan de rand van Montfort, in een rustige landelijke omgeving en in een kleinschalige nieuwbouwwijk, ligt deze recent gebouwde en bijzonder royale half vrijstaande woning met aanbouw, inpandige garage, vier slaapkamers en een diepe tuin met vrij uitzicht over de uitgestrekte landerijen.
De woning combineert moderne luxe met een landelijke ligging en is uitstekend geïsoleerd, wat resulteert in een energielabel A+ en een zeer laag energieverbruik.

De jonge woonwijk, gerealiseerd in 2018, heeft een eigen, herkenbaar karakter dat perfect past binnen het groene buitengebied van Montfort. Hier woon je in een rustige straat zonder doorgaand verkeer, omringd door vriendelijke buren en veel ruimte. Het is een ideale woonomgeving voor starters, jonge gezinnen en senioren die graag landelijk willen wonen, maar toch de gemakken van het dorp dichtbij willen hebben.
De wijk bestaat uit circa 30 woningen — een gevarieerde mix van vrijstaande villa’s, twee-onder-een-kapwoningen en starterswoningen — en ligt aan de Boordmoolweg, nabij de Sportlaan. Aan de ene zijde sluit de wijk aan op de bestaande bebouwing van Montfort, terwijl de andere zijde direct grenst aan het open landschap.

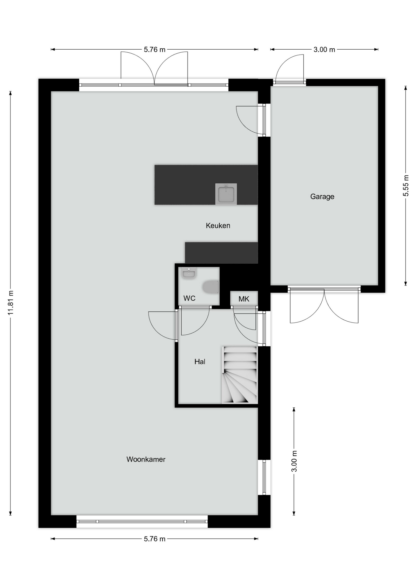
Begane grond

De woning beschikt over een verzorgde voortuin met oprit en toegang tot de inpandige garage. Via de zijpoort is er een achterom naar de tuin.

We betreden de woning in de ruime en lichte ontvangsthal, voorzien van een moderne pvc-vloer, trapopgang, meterkast en een betegeld gastentoilet met zwevend closet en fonteintje. De hal biedt toegang tot de woonkamer en ademt direct de verzorgde, moderne afwerking van de woning uit.

De ruime L-vormige woonkamer heeft grote raampartijen die zorgen voor een overvloed aan daglicht en een prettig uitzicht op zowel de voor- als achtertuin. De ruimte is afgewerkt met een onderhoudsvriendelijke pvc-vloer en voorzien van vloerverwarming, wat zorgt voor optimaal wooncomfort. Dankzij de open indeling is de woonkamer naadloos verbonden met de keuken en aanbouw, waardoor een gezellige en lichte leefruimte ontstaat.

De open keuken met aanbouw is werkelijk het hart van het huis. Hier komt koken, samenzijn en genieten samen. De luxe keukenopstelling met kookeiland is uitgevoerd met hoogwaardige inbouwapparatuur: een vaatwasser, koelkast, magnetron, afzuigkap en een imposant “Falcon” fornuis met 5-pits inductiekookplaat, twee ovens en grill. Het keramische werkblad en de vele kastruimtes en lades bieden zowel stijl als functionaliteit.

De aanbouw (2,40 meter diep) beschikt over een brede pui met openslaande deuren naar de tuin, waardoor binnen en buiten moeiteloos in elkaar overlopen. Tijdens warme zomerdagen kunnen de deuren open voor een directe verbinding met het terras, terwijl je in de winter geniet van het uitzicht op de tuin en de landerijen.

De inpandige, volledig geïsoleerde en verwarmde garage is bereikbaar vanuit de keuken en beschikt over kunststof garagedeuren, een pvc-vloer en een achterdeur naar de tuin. Deze ruimte kan multifunctioneel worden gebruikt — bijvoorbeeld als hobbyruimte, bijkeuken of werkplek.

De achtertuin is een ware eyecatcher: smaakvol aangelegd met een terras van hardhouten planken, een gazon, gevarieerde beplanting en een achterom aan zowel de zijkant als de achterzijde. Achterin bevindt zich een royale houten overkapping met aparte berging en een gezellig zitgedeelte, ideaal voor lange zomeravonden of beschutte wintermomenten. De tuin ligt op het zuiden, waardoor je de hele dag kunt genieten van de zon en het adembenemende uitzicht over de landerijen.

Eerste verdieping
De eerste verdieping is ruim opgezet en voorzien van een overloop die toegang biedt tot drie comfortabele slaapkamers. Alle kamers zijn strak afgewerkt en voorzien van een fraaie pvc-vloer met vloerverwarming, wat zorgt voor een warme en moderne uitstraling.

De badkamer is luxe uitgevoerd en volledig betegeld. De ruimte beschikt over een grote inloopdouche, zwevend toilet en een dubbele wastafel met modern meubel, spiegel en verlichting. Dankzij het tijdloze design en de hoogwaardige materialen is dit een stijlvolle en praktische ruimte waar comfort centraal staat.

Tweede verdieping
Via een vaste trap bereik je de royale tweede verdieping. Deze ruimte biedt volop mogelijkheden voor een vierde slaapkamer, werkkamer of hobbyruimte.
De verdieping beschikt over een groot dakkapel, waardoor de ruimte licht en luchtig aanvoelt. Daarnaast bevinden zich hier de opstelling van de Atag HR-combiketel (2018, eigendom) en het Duco ventilatiesysteem (2018).

Algemeen
+ Recent gebouwde woning (2018) met royale aanbouw en 4 slaapkamers.
+ Energielabel A+.
+ Professioneel camerasysteem (bediening via WiFi/smartphone).
+ Nagenoeg de gehele woning is voorzien van elektrische bedienbare rolluiken.
+ Kunststof kozijnen met HR++ (Superplus) beglazing.
+ Waterontharder.
+ 17 zonnepanelen (eigendom).
+ Ruime aanbouw (keuken) over de volledige breedte van de woning, 2.40 m diep.
+ Luxe keuken en badkamer.
+ Achtertuin op het zuiden met fantastisch uitzicht over de landerijen.
+ Op korte afstand van de Kasteeltuinen en Kasteel Montfort.
+ Alle dagelijkse voorzieningen op slechts 400 meter in de dorpskern van Montfort.
+ Uitstekende bereikbaarheid via de A2 en A73 (5 minuten rijden).

Omgeving
Montfort is een van de zes dorpskernen van de gemeente Roerdalen (Herkenbosch, Melick, Montfort, Posterholt, Sint Odiliënberg en Vlodrop). Het dorp telt circa 3.200 inwoners en ligt in een landelijke, groene omgeving.

Montfort bevindt zich op slechts 10 minuten rijden van de levendige stad Roermond en beschikt zelf over alle benodigde voorzieningen, waaronder een basisschool, supermarkt, bakker, slager, huisartsenpraktijk, tandarts, restaurants, fietsenwinkel, sporthal en zwembad.

De sfeervolle binnenstad van Roermond is binnen enkele minuten bereikbaar. Dankzij de gunstige ligging op slechts 4 km van de autosnelwegen A73 en A2 zijn steden zoals Heerlen, Sittard, Maastricht, Eindhoven en Venlo in circa 30 minuten te bereiken.

Aan de rand van Montfort, in een rustige landelijke omgeving en in een kleinschalige nieuwbouwwijk, ligt deze recent gebouwde en bijzonder royale half vrijstaande woning met aanbouw, inpandige garage, vier slaapkamers en een diepe tuin met vrij uitzicht over de uitgestrekte landerijen. De woning combineert moderne luxe met een…

Kenmerken

  • Status Verkocht
  • Vraagprijs € 475.000,- k.k.
  • Aanvaarding In overleg
  • Soort woonhuis Twee onder een kapwoning
  • Soort bouw Bestaande bouw
  • Bouwjaar 2018
  • Soort dak Zadeldak
  • Onderhoud binnen Uitstekend
  • Onderhoud buiten Uitstekend
  • Gebruiksoppervlakte wonen ca. 168 m2
  • Inhoud ca. 632 m3
  • Perceeloppervlakte ca. 288 m2
  • Aantal kamers 5 kamers
  • Aantal slaapkamers 4
  • Aantal badkamers 1 badkamer
  • Badkamervoorzieningen Toilet, dubbele wastafel, wastafelmeubel, inloopdouche
  • Aantal woonlagen 3 woonlagen
  • Voorzieningen Mechanische ventilatie, tv kabel, glasvezel kabel, zonnepanelen
  • Energielabel A+
  • Isolatie Dakisolatie, muurisolatie, vloerisolatie, volledig geisoleerd
  • Verwarming Cv ketel, vloerverwarming geheel
  • Warm water Cv ketel
  • C.v.-ketel type Gas
  • C.v.-ketel bouwjaar 2018
  • Eigendom Eigendom
  • Ligging Aan rustige weg, in woonwijk, vrij uitzicht, in bosrijke omgeving, landelijk gelegen
  • Hoofdtuin Achtertuin
  • Oppervlakte hoofdtuin ca. 117 m2
  • Ligging hoofdtuin Zuid
  • Achterom Ja
  • Kwaliteit tuin Verzorgd
  • Schuur / berging Vrijstaand hout
  • Aantal schuren / bergingen 1
  • Voorzieningen Voorzien van elektra
  • Parkeerfaciliteiten Openbaar parkeren, op eigen terrein
  • Garage Inpandig
Meer kenmerken Minder kenmerken

Plattegronden

Statistieken

Cijfers voor de wijk

Burgerlijke staat

  • Gehuwd 1380
  • Ongehuwd 1085
  • Gescheiden 170
  • Verweduwd 175

Leeftijd in gemeente

  • 0-15 13%
  • 15-15 10%
  • 25-45 20%
  • 45-65 33%
  • 65+ 25%

Leeftijd buurtbewoners

  • 0-15 14%
  • 15-15 9%
  • 25-45 21%
  • 45-65 33%
  • 65+ 23%

Benieuwd naar de waarde van je woning?

Maak dan een afspraak voor een gratis waardebepaling zonder verplichtingen.

Even binnenkijken?

Neem vrijblijvend contact met ons op.