Terug naar overzicht
Heerlen

Hambeukerboord 82

€ 325.000, - k.k.

Op centrale locatie gelegen op de Heerlerbaan, ruime geschakelde woning met riante garage, souterrain en tuin, Hambeukerboord 82 te Heerlen.

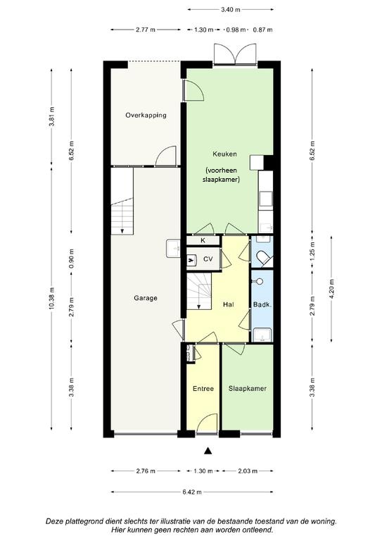
Indeling

Souterrain:
Het souterrain is te bereiken via de garage en is verdeeld in twee kelderruimtes van ca. 9m2 en 10.5m2.

Begane grond:
Entree. Hal met toegang naar de ontvangstruimte met trappenpartij naar de eerste verdieping, toegang naar de eerste slaapkamer, toiletruimte en badkamer.
De entree biedt toegang naar de ruime hal. vanuit de hal heeft men toegang naar de slaapkamer, toiletruimte, badkamer, cv-ruimte, leefkeuken en garage.
De slaapkamer is aan de voorzijde gelegen en is voor diverse doeleinde geschikt zoals kantoor of hobbyruimte.
De geheel betegelde badkamer is voorzien van een vaste wastafel en inloopdouche. De riante leefkeuken is 6,52 m x 3,40 m (voorheen in gebruik als slaapkamer). De keuken is voorzien van de navolgende apparatuur: elektrische kookplaat, afzuigkap, spoelbak en koelkast. Vanuit de keuken heeft men middels een openslaande deur toegang naarhet terras en de tuin.
De inpandig garage is ca. 28.5m2 groot en voorzien van een elektrische poort.
De tuin is voorzien van een groot terras en biedt de hele dag zon. Verder is er een separate berging ca. 11m2 groot.

Eerste verdieping:
Ruime woonkamer uitgerust met een haardpartij. De woonkamer is aan de voorzijde gelegen en staat in open verbinding met de keuken. De keuken is voorzien van een keuken in hoekopstelling inclusief apparatuur: inductiekookplaat, afzuigkap, vaatwasser, combi-oven en koelkast.
Aan de achterzijde is de eet- of zitkamer gelegen en is voorzien van een houtkachel. Vanuit de zitkamer is de grote slaapkamer te bereiken met inbouwkasten en de separate toiletruimte.

Bijzonderheden:
– Woonhuis met mogelijkheden om een kantoor of praktijkruimte aan huis te realiseren.
– Energielabel C.
– De woning is geïsoleerd middels dak-, vloer en muurisolatie.
– Dubbele beglazing, grotendeels HR.
– Centraal gelegen nabij alle voorzieningen zoals scholen en winkels.
– Aanvaarding in overleg.

Op centrale locatie gelegen op de Heerlerbaan, ruime geschakelde woning met riante garage, souterrain en tuin, Hambeukerboord 82 te Heerlen. Indeling Souterrain: Het souterrain is te bereiken via de garage en is verdeeld in twee kelderruimtes van ca. 9m2 en 10.5m2. Begane grond: Entree. Hal met toegang naar…

Kenmerken

  • Status Beschikbaar
  • Vraagprijs € 325.000,- k.k.
  • Aanvaarding In overleg
  • Soort woonhuis Geschakelde woning
  • Soort bouw Bestaande bouw
  • Bouwjaar 1974
  • Soort dak Plat dak
  • Onderhoud binnen Redelijk tot goed
  • Onderhoud buiten Goed
  • Gebruiksoppervlakte wonen ca. 144 m2
  • Oppervlakte gebouwgebonden ca. 11 m2
  • Externe bergruimte ca. 11 m2
  • Overige inpandige ruimte ca. 49 m2
  • Inhoud ca. 634 m3
  • Perceeloppervlakte ca. 236 m2
  • Aantal kamers 6 kamers
  • Aantal slaapkamers 2
  • Aantal badkamers 1 badkamer
  • Badkamervoorzieningen Douche, wastafel
  • Aantal woonlagen 3 woonlagen
  • Voorzieningen Rolluiken
  • Energielabel C
  • Isolatie Muurisolatie, dubbel glas
  • Verwarming Cv ketel
  • Warm water Cv ketel
  • C.v.-ketel type Gas
  • C.v.-ketel bouwjaar 2009
  • Eigendom Huur
  • Ligging In woonwijk
  • Hoofdtuin Achtertuin
  • Oppervlakte hoofdtuin ca. 150 m2
  • Ligging hoofdtuin Zuidwest
  • Kwaliteit tuin Normaal
  • Schuur / berging Vrijstaand hout
  • Aantal schuren / bergingen 1
  • Parkeerfaciliteiten Openbaar parkeren
  • Garage Inpandig
Meer kenmerken Minder kenmerken

Plattegronden

Statistieken

Cijfers voor de wijk

Burgerlijke staat

  • Gehuwd
  • Ongehuwd
  • Gescheiden
  • Verweduwd

Leeftijd in gemeente

Leeftijd buurtbewoners

  • 0-15 13%
  • 15-15 11%
  • 25-45 21%
  • 45-65 33%
  • 65+ 23%

Benieuwd naar de waarde van je woning?

Maak dan een afspraak voor een gratis waardebepaling zonder verplichtingen.

Even binnenkijken?

Neem vrijblijvend contact met ons op.