Hagelkruisweg 1
Voor het eerst in ruim 50 jaar komt beschikbaar deze woning op een van de meest gewilde locaties van Sint Odilienberg. Gebouwd in eigen beheer en daardoor uniek in zijn soort ligt deze vrijstaande, ruime woning met tuin rondom tegenover Landgoed Hoosden. Kenmerkende eigenschappen zijn de centrale doch verhoogde ligging waardoor sprake is van veel privacy. Bij het ontwerp van de woning is rekening gehouden dat er veel ramen zijn waardoor er veel contact is met de tuin en het groen aan de overzijde. De woonruimte is royaal opgezet met een woonoppervlakte van maar liefst 206 m² en er is ruim voldoende bergruimte (overig inpandige ruimte is 82 m²). De tuin ligt rondom het huis, ook hier is er heel veel rust en privacy. Er is een ruime garage, deze is vanaf de achterzijde bereikbaar. Een woning met veel potentie voor wie op zoek is naar ruimte, rust en de mogelijkheid om er een modern droomhuis van te maken!
Indeling:
Souterrain:
Hier is een multifunctionele ruimte 8.90 x 5.88 met een oppervlakte van 52 m², die gebruikt kan worden als kantoorruimte, voor hobby’s, als speelplek of “chillplek” voor de kinderen, als “mancave”, klusruimte, noem het maar op. Voor zo’n extra kamer is altijd een invulling te bedenken.
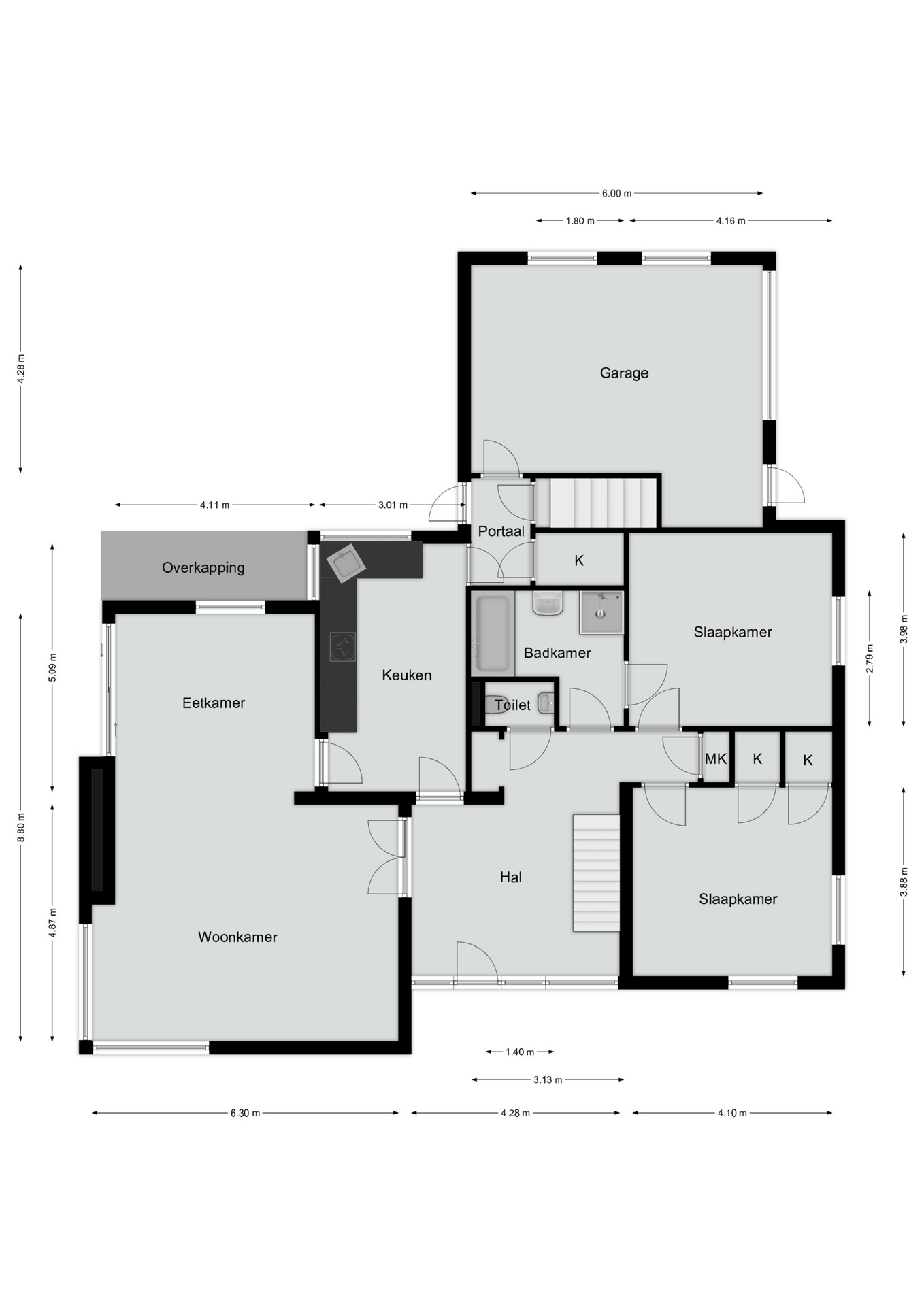
Begane grond:
Via de ruime voortuin biedt een overdekte entree toegang tot de ontvangsthal met vide, deze vide maakt het binnenkomen extra ruimtelijk. In de hal is een garderobenis, de meterkast en de toiletruimte. Vanuit de hal geeft een dubbele deur toegang tot de ruime L-vormige woonkamer 8.80 x 6.30/4.10 met tegelvloer en haardpartij. Met deze grote ramen en de schuifpui is er mooi contact met buiten en met de tuin. Er is een gesloten leefkeuken 5.10 x 3.00 met een hoekinstallatie voorzien van een granieten werkblad en inbouwapparatuur. Vanuit de keuken is er een portaal dat toegang geeft tot een wasruimte, het souterrain en de inpandig bereikbare garage 6.00 x 4.28. Deze garage is aan de buitenzijde bereikbaar via de achtertuin, die grenst aan de Morgenweg.
Vanuit de hal is er ook toegang tot de twee slaapkamers op de begane grond. Deze zijn 4.10 x 3.98 en 4.10 x 3.88 met twee muurkasten. De badkamer is voorzien van ligbad, douche en wastafel.
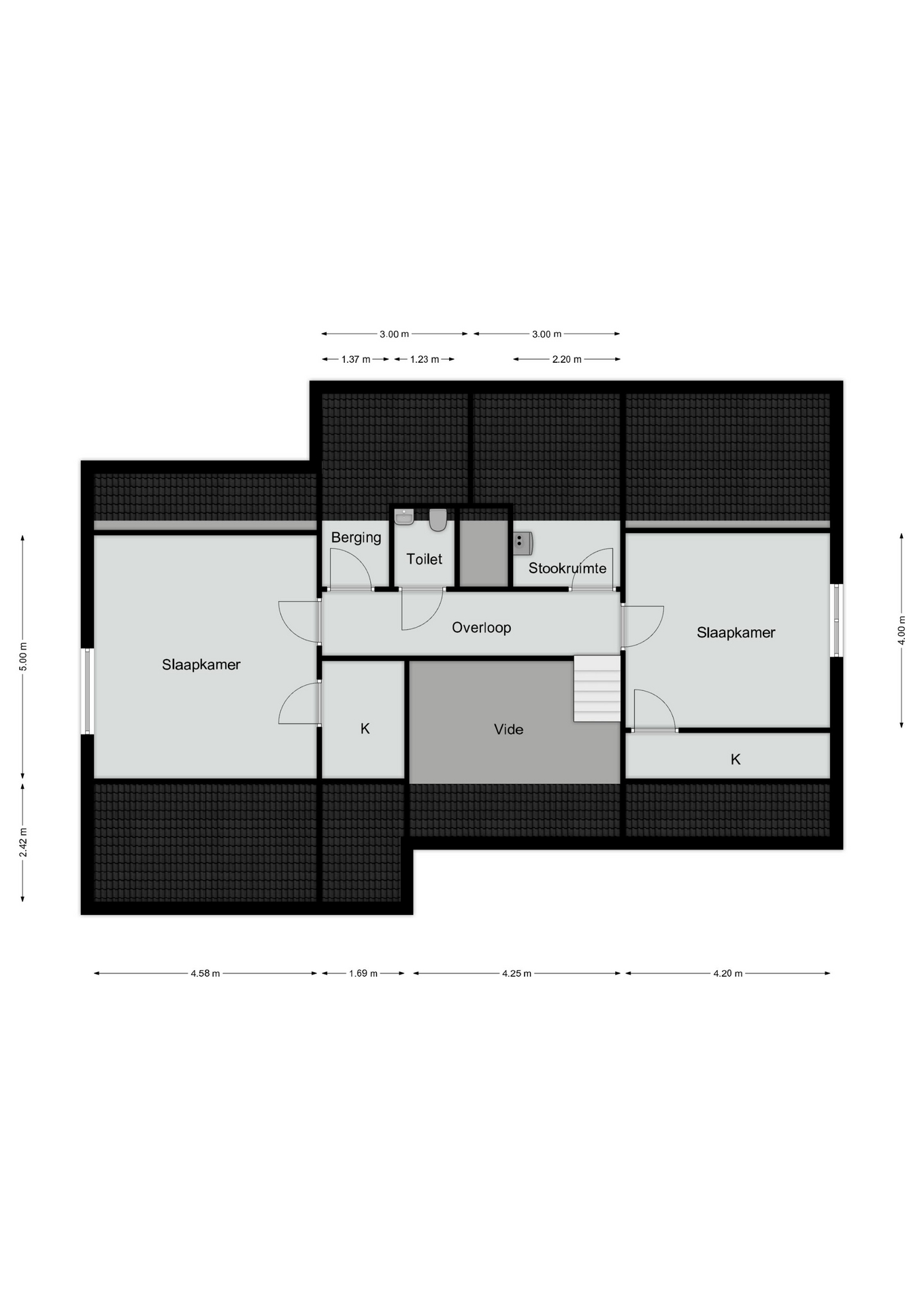
Eerste verdieping:
De overloop met de vide geeft toegang tot twee slaapkamers van respectievelijk 5.00 x 4.58 en 4.20 x 4.00. Vanaf de overloop zijn er twee bergruimtes bereikbaar: 1.37 x 1.00 en 2.20 x 1.00, hier is tevens de combi c.v.-installatie (2022 Vaillant HR107 Ecotec plus eigendom) geplaatst. Ook is er een tweede toilet op de eerste etage aanwezig met fonteintje. 
Tuin:
Het huis is mooi op het perceel gesitueerd, zo komt het huis mooi tot zijn recht. Zowel aan de linker- als aan de rechterzijde is tuin gelegen. De achtertuin biedt enorm veel rust en privacy. Hier is het heerlijk zitten op het grote terras, door de ligging op het zuidwesten is er in deze tuin altijd zon en ook schaduwplekken te vinden. De garage en de tuin zijn ook vanaf de achterzijde bereikbaar via de Morgenweg.
Bijzonderheden:
* Uitstekende ligging met veel rust en privacy.
* Royale inpandige garage (toegankelijk via de Morgenweg).
* Levensloopbestendige indeling met 2 slaapkamers en badkamer op de begane grond.
* Royale tuin op het zuidwesten.
* Goede dagelijkse voorzieningen in het dorp.
* Ruime parkeergelegenheid voor meerdere auto’s op eigen terrein.
* Om u een indruk te geven hoe de woning eruit zou kunnen zien, hebben we zogenaamde Artists Impressions laten maken en in deze presentatie opgenomen, deze zijn gebaseerd op de daadwerkelijke afmetingen van dit huis.
Locatie:
Deze woning is gelegen tegenover landgoed van Hoosden, op de hoek van de Hagelkruisweg, de Veestraat en de Sint Odiliastraat aan de rand van het dorp Sint Odiliënberg. Op slechts 200 meter afstand ligt een groot groen grasveld met speeltoestellen. Daarnaast ligt het huis aan het einde van een doodlopende straat, wat zorgt voor veel rust.
Sint Odiliënberg is een dorp met een rijke historie en een warme gemeenschap. In de directe omgeving vindt u winkels, scholen en sportfaciliteiten. Voor natuurliefhebbers ligt het prachtige Roerdal met zijn wandel- en fietsroutes letterlijk om de hoek. Met de auto bereikt u Roermond in slechts enkele minuten, waar u naast alle voorzieningen ook het Designer Outlet en een NS-station vindt. Het dorp is een van de kernen van de gemeente Roerdalen (Herkenbosch, Melick, Montfort, Posterholt, Sint Odiliënberg en Vlodrop). Het dorp langs de Roer heeft circa 3.500 inwoners en kenmerkt zich door de uitgestrektheid in een landelijke en groene omgeving. Op slechts 10 min rijafstand ligt het National Park De Meinweg waar je heerlijk kan wandelen. Tevens is Sint Odiliënberg onderdeel van het Pieterpad.
Voor het eerst in ruim 50 jaar komt beschikbaar deze woning op een van de meest gewilde locaties van Sint Odilienberg. Gebouwd in eigen beheer en daardoor uniek in zijn soort ligt deze vrijstaande, ruime woning met tuin rondom tegenover Landgoed Hoosden. Kenmerkende eigenschappen zijn de centrale doch verhoogde ligging…
 
                                    Kenmerken
- Status Beschikbaar
- Vraagprijs € 645.000,- k.k.
- Aanvaarding In overleg
- Soort woonhuis Vrijstaande woning
- Soort bouw Bestaande bouw
- Bouwjaar 1974
- Soort dak Zadeldak
- Onderhoud binnen Goed
- Onderhoud buiten Goed
- Gebruiksoppervlakte wonen ca. 206 m2
- Oppervlakte gebouwgebonden ca. 5 m2
- Overige inpandige ruimte ca. 82 m2
- Inhoud ca. 918 m3
- Perceeloppervlakte ca. 1040 m2
- Aantal kamers 6 kamers
- Aantal slaapkamers 4
- Aantal badkamers 1 badkamer
- Badkamervoorzieningen Ligbad, douche, wastafel
- Aantal woonlagen 3 woonlagen
- Energielabel D
- Verwarming Cv ketel
- Warm water Cv ketel
- C.v.-ketel type Gas
- C.v.-ketel bouwjaar 2022
- Ligging Aan rustige weg, in woonwijk
- Hoofdtuin Tuin rondom
- Achterom Ja
- Kwaliteit tuin Verzorgd
- Garage Inpandig
Plattegronden
 
                                         
                                         
                                        Cijfers voor de wijk
Burgerlijke staat
- Gehuwd
- Ongehuwd
- Gescheiden
- Verweduwd
Leeftijd in gemeente
Leeftijd buurtbewoners
- 0-15 13%
- 15-15 10%
- 25-45 19%
- 45-65 33%
- 65+ 26%
Benieuwd naar de waarde van je woning?
Maak dan een afspraak voor een gratis waardebepaling zonder verplichtingen.
Downloads
Even binnenkijken?
Neem vrijblijvend contact met ons op.
 
                                 
                             
                             
                             
                             
                             
                             
                             
                             
                             
                             
                             
                             
                             
                             
                             
                             
                             
                             
                             
                             
                             
                             
                             
                             
                             
                             
                             
                             
                             
                             
                             
                             
                             
                             
                             
                             
                            