Terug naar overzicht
Geulle

Gank 4

€ 575.000, - k.k.

Op een unieke en idyllische locatie in Geulle aan de Maas ligt deze volledig gerenoveerde en instapklare woning met vrijstaande garage, omgeven door rust, ruimte en natuur. Vanuit de woning en tuin geniet u van een prachtig vrij uitzicht over de omliggende landerijen, de voorburcht van Kasteel Geulle en de Maas. De woning is in 2020 volledig gemoderniseerd, uitstekend geïsoleerd en voorzien van alle hedendaagse comfort, waaronder vloerverwarming en energielabel A. Een ideale plek voor wie landelijk wil wonen met volop privacy, maar toch met goede bereikbaarheid van voorzieningen.

Indeling

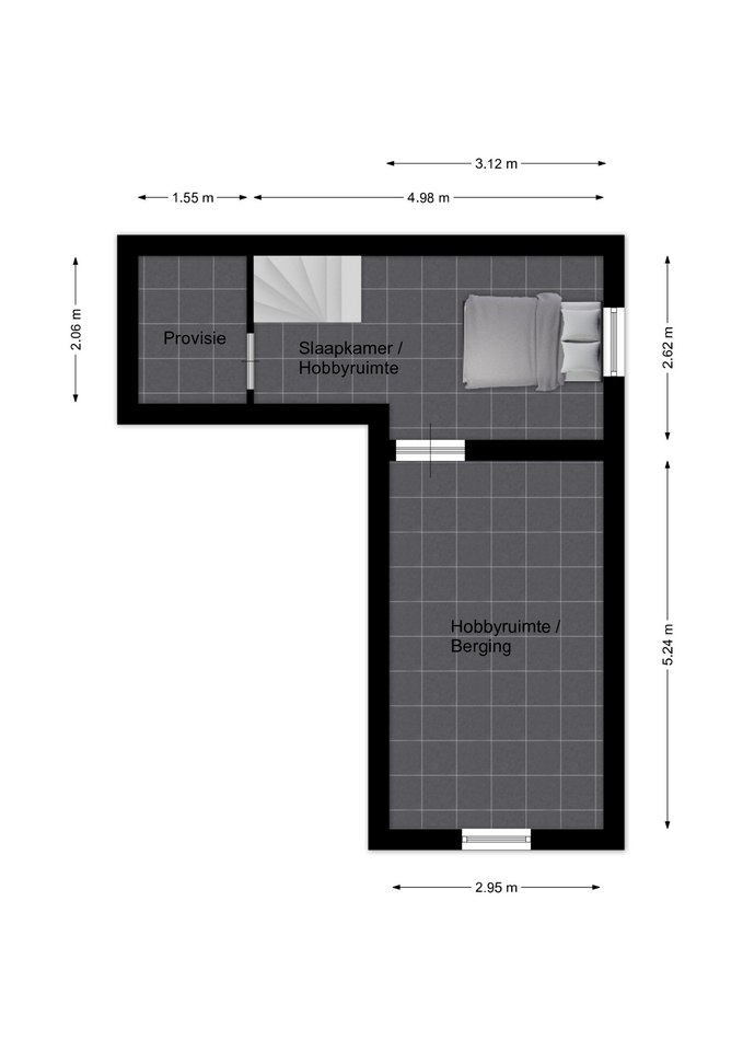
Souterrain:
Drie kelderruimtes, te weten een slaapkamer/hobbyruimte (ca. 12m²), provisiekelder (ca. 3.3m²) en een hobbyruimte/berging (ca. 16m²).

Begane grond:
Hal met toilet, meterkast (12 groepen, 3 aardlekschakelaars) en naastgelegen kantoor (ca. 9.6m²). Moderne badkamer (ca. 5.2m²) met inloopdouche, wastafel met meubel en vloerverwarming. Woonkamer (ca. 20.4m²) met lichtkleurige grindvloer. Open keuken (ca. 10.3m²) met moderne aanrechtcombinatie voorzien van de volgende apparatuur: inductie kookplaat, combi-oven, koel-vries combinatie, vaatwasser, spoelbak en afzuigkap. Tevens een muurkast met witgoed aansluitingen en opstelling van de cv-installatie (Nefit Trendline, eigendom, bouwjaar 2020). Achter de keuken gelegen, met glas omsloten aanbouw (met elektrische screens), waar het werkelijk genieten is van de mooie omgeving! Overdekt terras (ca. 6.3m²). Rondom gelegen, verzorgde tuin in een landelijke omgeving. Vrijstaande garage (ca. 27.2m²) met elektrische poort en een verdieping (ca. 11.3 m²) met dakkapel en dakisolatie.

Eerste verdieping:
Overloop. Twee slaapkamers (respectievelijk ca. 18.2m² en 11.7m²), waarvan de grootste een eigen badkamer heeft (ca. 5.2m²) met douche, wastafel met meubel en toilet. Allen voorzien van een parketvloer en dakkapel.

Tweede verdieping:
Via luik bereikbare vliering met een nokhoogte van 1.2 meter.

Nadere bijzonderheden:
– Uniek gelegen, met uitzicht op de omliggende landerijen, de voorburcht van Kasteel Geulle en de Maas;
– In 2020 geheel gerenoveerd;
– Energiezuinige woning, energielabel A;
– Begane grond is voorzien van vloerverwarming;
– Geheel geïsoleerd: dak-, vloer-, muurisolatie en voorzien van 9 zonnepanelen (eigendom);
– Voorzien van kunststof kozijnen met HR++ glas en aluminium kozijnen met HR+++ glas (aanbouw);
– Verzorgde tuin in landelijke omgeving met veel privacy;
– Vrijstaande garage met verdieping;
– Ligging nabij de Maas en het Juliankanaal en de daarbij horende wandelgebieden.

Omgeving:
Geulle aan de Maas is onderdeel van Geulle en telt circa 2.900 inwoners en behoort tot de Gemeente Meerssen. Het dorp is gunstig gelegen ten opzichte van de autosnelweg A2 richting Maastricht – Eindhoven. Geulle beschikt over een rijk verenigingsleven waaronder een harmonie, schutterij en carnavalsvereniging.
Tevens zijn er enkele voorzieningen aanwezig zoals een slager, bakker en een basisschool. Wandel- en fietspaden in het Heuvelland en Landschapspark Maasvallei zijn snel bereikbaar.

Op een unieke en idyllische locatie in Geulle aan de Maas ligt deze volledig gerenoveerde en instapklare woning met vrijstaande garage, omgeven door rust, ruimte en natuur. Vanuit de woning en tuin geniet u van een prachtig vrij uitzicht over de omliggende landerijen, de voorburcht van Kasteel Geulle en de…

Kenmerken

  • Status Beschikbaar
  • Vraagprijs € 575.000,- k.k.
  • Aanvaarding In overleg
  • Soort woonhuis Vrijstaande woning
  • Soort bouw Bestaande bouw
  • Bouwjaar 1980
  • Soort dak Zadeldak
  • Onderhoud binnen Goed tot uitstekend
  • Onderhoud buiten Goed tot uitstekend
  • Gebruiksoppervlakte wonen ca. 127 m2
  • Oppervlakte gebouwgebonden ca. 6 m2
  • Externe bergruimte ca. 38 m2
  • Overige inpandige ruimte ca. 32 m2
  • Inhoud ca. 565 m3
  • Perceeloppervlakte ca. 452 m2
  • Aantal kamers 3 kamers
  • Aantal slaapkamers 2
  • Aantal badkamers 2 badkamers
  • Badkamervoorzieningen Wastafel, wastafelmeubel, inloopdouche, vloerverwarming, toilet, douche, wastafel, wastafelmeubel
  • Aantal woonlagen 4 woonlagen
  • Voorzieningen Mechanische ventilatie, buitenzonwering, schuifpui, zonnepanelen
  • Energielabel A
  • Isolatie Dakisolatie, muurisolatie, vloerisolatie, volledig geisoleerd, hr glas
  • Verwarming Cv ketel
  • Warm water Cv ketel
  • C.v.-ketel type Gas
  • C.v.-ketel bouwjaar 2020
  • Eigendom Eigendom
  • Ligging Aan rustige weg, vrij uitzicht, open ligging, landelijk gelegen
  • Hoofdtuin Tuin rondom
  • Achterom Ja
  • Kwaliteit tuin Verzorgd
  • Parkeerfaciliteiten Openbaar parkeren, op eigen terrein
  • Garage Vrijstaand steen
Meer kenmerken Minder kenmerken

Plattegronden

Statistieken

Cijfers voor de wijk

Burgerlijke staat

  • Gehuwd
  • Ongehuwd
  • Gescheiden
  • Verweduwd

Leeftijd in gemeente

Leeftijd buurtbewoners

  • 0-15 12%
  • 15-15 8%
  • 25-45 18%
  • 45-65 35%
  • 65+ 26%

Benieuwd naar de waarde van je woning?

Maak dan een afspraak voor een gratis waardebepaling zonder verplichtingen.

Even binnenkijken?

Neem vrijblijvend contact met ons op.