Terug naar overzicht
Kerkrade

Einderstraat 86

€ 235.000, - k.k.

Nabij het centrum van Kerkrade mogen wij u deze verassend ruime tussenwoning met 3 slaapkamers aanbieden.
De woning is gelegen aan de Einderstraat 86 te Kerkrade.

Indeling:
Souterrain:
Het souterrain is groot ca. 35 m².
In het souterrain is een dompelpomp aanwezig.

1e Verdieping:
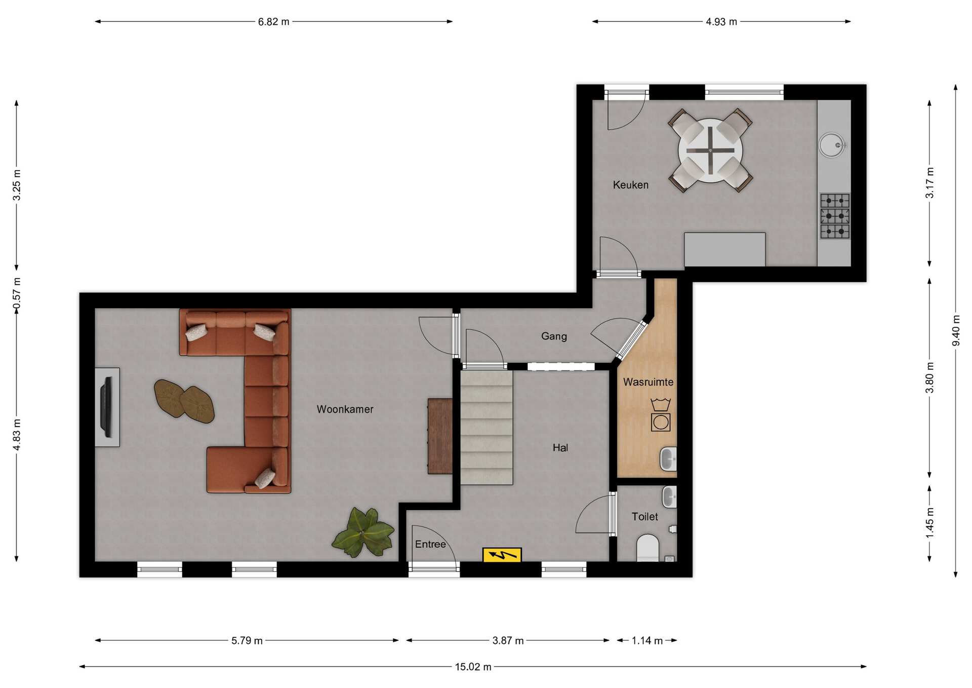
Middels de ruime hal/entree met meterkast, trapopgang en ruim geheel betegelde toiletruimte met zwevend toilet en fonteintje komt u in de woonkamer met semi open keuken.
De woonkamer is aan de voorzijde van de woning gelegen en heeft een oppervlakte van ca. 32 m². Tevens is er een ingebouwde elektrische haard aanwezig.
De gesloten keuken is aan de achterzijde gelegen en is groot ca. 16 m².
De keuken is voorzien van een hoek opgestelde keukeninrichting met de navolgende apparatuur: 5-pits gaskookplaat, afzuigkap, oven, vaatwasser en koelkast.

In de bijkeuken, deze is groot ca. 4 m², is de aansluiting voor de wasmachine gesitueerd.

De gehele begane grond is voorzien van een tegelvloer.

Vanuit de keuken is de grotendeels betegelde tuin te bereiken.
De tuin is gelegen op het zuiden. In de tuin is een ruim tuinhuis met overdekt terras aanwezig.
Tevens is er in de tuin een overdekt terras welke voorzien is van een “louvre dak”.
De woning en de tuin zijn middels een pad (erfdienstbaarheid van pad) via de achterzijde te bereiken.

1e Verdieping:
Middels de overloop kunt u de 3 slaapkamers alsmede de badkamer bereiken.
De slaapkamers zijn respectievelijk groot ca. 15 m², 15 m² en 12 m² en allen voorzien van een laminaatvloer.
De geheel betegelde badkamer is groot ca. 4 m² en is voorzien van een ligbad (lekkage aan de afvoer), vaste wastafel en een zwevend toilet.
De badkamer is voorzien van een grindvloer.

2e Verdieping:
De bergzolder is middels een vlizotrap te bereiken.
Op de bergzolder is eveneens de Remeha CV-ketel gesitueerd.

Bijzonderheden:
– De woning is voorzien van kunststof kozijnen.
– De woning is voorzien van dubbele beglazing.
– De woning is voorzien van dakisolatie.
– De woning is voorzien van enkele rolluiken.
– De woning is voorzien van een alarminstallatie (Verisure).
– De Remeha CV-ketel met bouwjaar 2012 is eigendom.
– De woonkamer is voorzien van vloerverwarming.

Nabij het centrum van Kerkrade mogen wij u deze verassend ruime tussenwoning met 3 slaapkamers aanbieden. De woning is gelegen aan de Einderstraat 86 te Kerkrade. Indeling: Souterrain: Het souterrain is groot ca. 35 m². In het souterrain is een dompelpomp aanwezig. 1e Verdieping: Middels…

Kenmerken

  • Status Verkocht onder voorbehoud
  • Vraagprijs € 235.000,- k.k.
  • Aanvaarding In overleg
  • Soort woonhuis Tussenwoning
  • Soort bouw Bestaande bouw
  • Bouwjaar 1906
  • Soort dak Zadeldak
  • Onderhoud binnen Goed
  • Onderhoud buiten Goed
  • Gebruiksoppervlakte wonen ca. 127 m2
  • Externe bergruimte ca. 5 m2
  • Overige inpandige ruimte ca. 54 m2
  • Inhoud ca. 606 m3
  • Perceeloppervlakte ca. 180 m2
  • Aantal kamers 4 kamers
  • Aantal slaapkamers 3
  • Aantal badkamers 1 badkamer
  • Badkamervoorzieningen Ligbad, toilet, wastafel
  • Aantal woonlagen 4 woonlagen
  • Voorzieningen Alarminstallatie, rolluiken
  • Energielabel E
  • Isolatie Dakisolatie, dubbel glas
  • Verwarming Cv ketel
  • Warm water Cv ketel
  • C.v.-ketel type Gas
  • C.v.-ketel bouwjaar 2012
  • Eigendom Eigendom
  • Ligging Aan rustige weg, in centrum
  • Hoofdtuin Achtertuin
  • Oppervlakte hoofdtuin ca. 55 m2
  • Ligging hoofdtuin Zuidoost
  • Achterom Ja
  • Kwaliteit tuin Normaal
  • Schuur / berging Vrijstaand hout
  • Aantal schuren / bergingen 1
  • Parkeerfaciliteiten Op eigen terrein
  • Garage Geen garage
Meer kenmerken Minder kenmerken

Plattegronden

Statistieken

Cijfers voor de wijk

Burgerlijke staat

  • Gehuwd
  • Ongehuwd
  • Gescheiden
  • Verweduwd

Leeftijd in gemeente

Leeftijd buurtbewoners

  • 0-15 11%
  • 15-15 9%
  • 25-45 21%
  • 45-65 30%
  • 65+ 30%

Benieuwd naar de waarde van je woning?

Maak dan een afspraak voor een gratis waardebepaling zonder verplichtingen.

Even binnenkijken?

Neem vrijblijvend contact met ons op.