Terug naar overzicht
Kerkrade

Einderstraat 15 A

€ 350.000, - k.k.

In het centrum van Kerkrade ligt op een rustige maar zeer centrale locatie dit verrassend ruime appartement. De woning is in 2016 geheel vernieuwd, verduurzaamd tot energielabel A en modern en hoogwaardig afgewerkt. Het appartement is gelegen op de eerste verdieping en te bereiken via een eigen entree en gesloten trapopgang. Het appartement beschikt over twee slaapkamers en er is voldoende bergruimte. Er is geen buitenruimte aanwezig in de vorm van een balkon of loggia.
Parkeren kan op openbare parkeergelegenheden middels een parkeervergunning, maar de huidige eigenaar huurt ook een garage in de directe omgeving die over te nemen is.
Winkels, het treinstation, het zwembad en sportcomplex Vie, het theater en de bibliotheek gevestigd in de ontmoetingsplek de HuB bevinden zich in de directe omgeving.

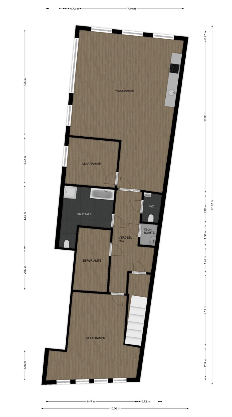
Indeling:
Begane grond: entree, moderne meterkast en trappenhuis.

Eerste verdieping: entree, ruime hal vanwaar alle ruimtes zijn te bereiken, intercominstallatie. Het toilet heeft een fonteintje. De technische ruimte biedt plaats aan de C.V.-installatie, WTW-opstelling en wasmachine- met droger. Tevens is er een tweede berging ideaal voor opslag. De riante woonkamer heeft veel lichtinval en en een open keuken met een moderne keuken-installatie voorzien van een inductie-kookplaat, combi-oven, koelkast en vaatwasser.
Er zijn twee slaapkamers en de badkamer is geheel betegeld en ingericht met een inloopdouche, ligbad, badmeubel en tweede toilet.

Bijzonderheden:
* energielabel A;
* geheel vernieuwd in 2016;
* kunststof kozijnen met HR++ beglazing;
* WTW-installatie;
* C.V.-combi HR installatie (2022 in eigendom);
* geheel voorzien vloerverwarming;
* intercom-installatie;
* VVE opgericht recentelijk;
* wel 0.5% van de herbouwwaarde in kas;
* VVE-bijdrage vastgesteld op € 100,- per maand;
* mogelijkheid tot huren garage in de directe omgeving voor € 100,- per maand.
* geen buitenruimte, maar wel mogelijkheid tot realiseren dakterras; vergunning en constructieberekening aanwezig;
* aanvaarding mogelijk per direct.

In het centrum van Kerkrade ligt op een rustige maar zeer centrale locatie dit verrassend ruime appartement. De woning is in 2016 geheel vernieuwd, verduurzaamd tot energielabel A en modern en hoogwaardig afgewerkt. Het appartement is gelegen op de eerste verdieping en te bereiken via een eigen entree en gesloten…

Kenmerken

  • Status Beschikbaar
  • Vraagprijs € 350.000,- k.k.
  • Aanvaarding In overleg
  • Soort bouw Bestaande bouw
  • Bouwjaar 2016
  • Soort dak Plat dak
  • Onderhoud binnen Goed
  • Onderhoud buiten Goed
  • Gebruiksoppervlakte wonen ca. 151 m2
  • Overige inpandige ruimte ca. 13 m2
  • Inhoud ca. 513 m3
  • Aantal kamers 4 kamers
  • Aantal slaapkamers 2
  • Aantal badkamers 1 badkamer
  • Badkamervoorzieningen Ligbad, toilet, wastafelmeubel, inloopdouche
  • Aantal woonlagen 1 woonlagen
  • Voorzieningen Balansventilatie
  • Energielabel A
  • Isolatie Dakisolatie, muurisolatie, vloerisolatie
  • Verwarming Cv ketel
  • Warm water Cv ketel
  • C.v.-ketel type Gas
  • C.v.-ketel bouwjaar 2022
  • Eigendom Eigendom
  • Ligging In centrum
  • Parkeerfaciliteiten Openbaar parkeren
  • Garage Geen garage
Meer kenmerken Minder kenmerken

Plattegronden

Statistieken

Cijfers voor de wijk

Burgerlijke staat

  • Gehuwd
  • Ongehuwd
  • Gescheiden
  • Verweduwd

Leeftijd in gemeente

Leeftijd buurtbewoners

  • 0-15 11%
  • 15-15 9%
  • 25-45 21%
  • 45-65 30%
  • 65+ 30%

Benieuwd naar de waarde van je woning?

Maak dan een afspraak voor een gratis waardebepaling zonder verplichtingen.

Even binnenkijken?

Neem vrijblijvend contact met ons op.