Eikenlaan 19
Perfect onderhouden en grotendeels gemoderniseerde, ruime twee-onder-een-kapwoning op een mooi hoekperceel van circa 429 m2. De afgelopen jaren, vanaf 2021, zijn er veel investeringen gedaan door de eigenaar, denk onder andere aan een nieuwe keuken, nieuwe vloeren begane grond en bovenverdieping, nieuw schilderwerk en behangwerk, vernieuwing plat dak, plaatsen van drie airco’s, 10 zonnepanelen en vernieuwen meterkast.
Hierbij is ook aan duurzaamheid en energiebesparing gedacht. De woning is vanuit de bouw geheel geïsoleerd en in 2022 is het plat dak van de garage, bijkeuken en keuken vernieuwd en extra geïsoleerd, alsook plat dak van het dakkapel aan de voorzijde. Door de aanwezigheid van drie airco’s (woonkamer, keuken en slaapkamer), inductiekookplaat, twee elektrische radiatoren op de toilet en badkamer en de 10 zonnepanelen (410 Wp per zonnepaneel) is er nauwelijks gasverbruik in de woning!
Als je de straat uitloopt, loop je het mooie park in met natuurvijver. Hier woon je in een groene, natuurlijke omgeving.
Kortom: dé ideale (gezins)woning waar je perfect jouw thuis van kunt maken. Ben je net zo enthousiast als ons, lees dan snel verder!
Indeling
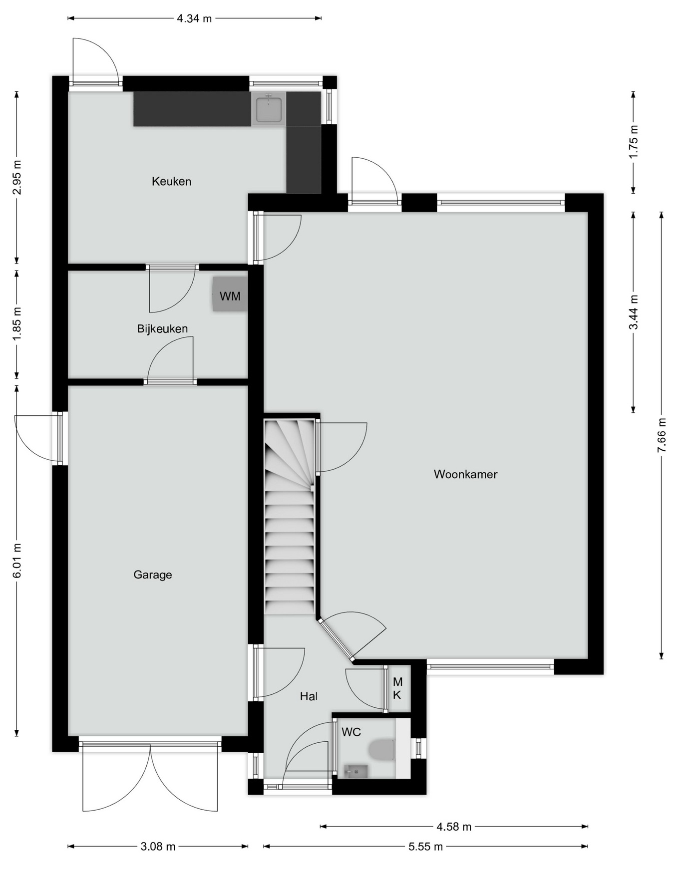
Begane grond
Hal/entree voorzien van een moderne pvc vloer met vernieuwde meterkast, nieuw beklede trapopgang naar eerste verdieping en toegang tot woonkamer, garage en toilet. Betegelde toiletruimte met zwevend closet, fonteintje en elektrische verwarming.
De ruime, lichte woonkamer (circa 38 m2) heeft een knusse sfeer en veel lichtinval door de grote raampartijen. Dit zorgt tevens voor optimaal tuincontact. De woning is volledig ingericht naar de hedendaagse wensen. De woonkamer is voorzien van een nieuwe pvc vloer en airco-installatie. De gesloten keuken (circa 11 m2) is in 2021 vernieuwd en eveneens voorzien van dezelfde doorlopende moderne pvc vloer en tevens een airco-installatie. Het betreft een hoekkeuken met de navolgende installaties zoals een inductiekookplaat, afzuiging, combi-oven, vaatwasser, spoelbak, koelkast en diverse opbergkastjes en lades. Vanuit de keuken is er tevens toegang tot de achtertuin. Praktische bijkeuken met aansluitpunten voor het witgoed en inpandig bereikbare garage (circa 19 m2) voorzien van openslaande deuren naar de oprit en middels een zijdeur toegang tot de tuin en tevens zij-ingang om achterom te komen. Zeer praktisch voor gezinnen met naar schoolgaande kinderen of om vanuit de auto boodschappen of andere spullen binnen te dragen. Daarnaast is er vanuit de garage ook weer toegang tot de hal van de woning. In de hal, woonkamer, keuken en bijkeuken loopt de nieuwe pvc vloer dorpelvrij door.
Eerste verdieping
Overloop die toegang geeft tot de drie slaapkamers en badkamer. De slaapkamers zijn respectievelijk circa 14 m2 10 m2 en 8 m2 en allen voorzien van een nieuwe vinylvloer. De grote slaapkamer is tevens voorzien van een airco-installatie. De badkamer is circa 5 m2 en voorzien van ligbad, toilet, vaste wastafel en elektrische verwarming.
Tweede verdieping
Middels nieuw beklede vaste trap is de ruime zolder bereikbaar. Deze bestaat uit een voorzolder met berging en vierde slaapkamer. Door de aanwezigheid van een Veluxdakraam is er prettig lichtinval. Er is voldoende opslagruimte in de knieschotten en berging aanwezig. Tevens opstelling cv-ketel (Intergas, 2019, eigendom).
Tuin
Deze woning beschikt over een ruime en mooi aangelegde achtertuin. Met een zuidelijke oriëntatie is een zonnige tuin gegarandeerd! Door de grootte van de tuin is er altijd wel een plekje in of uit de zon te vinden. De tuin is voorzien van een terras met elektrisch zonnescherm, gazon, borders met verschillende beplantingen, tuinverlichting, een vijver en een groot tuinhuis welke ideaal geschikt is voor opslag. Groot voordeel is dat de woning beschikt over een vrije achterom waar je middels een poortje aan de voorkant de verbinding hebt tussen de voortuin en de achtertuin. Zo is er een perfecte verbinding naar de oprit toe en kun je vanuit hier via een zijdeur van de garage gemakkelijk toegang krijgen tot de garage. Aan de voorzijde is een ruime oprit aanwezig alwaar plek is voor 2 auto’s en is de tuin ook mooi aangelegd met verschillende beplantingen.
Bijzonderheden
– Perfect onderhouden, ruime twee-onder-een-kapwoning op mooie locatie bij park en natuurvijver;
– De afgelopen jaren grotendeels gemoderniseerd, hierdoor is de woning instapklaar!;
– Groot hoekperceel met fijne tuin en vrije achterom met praktische zijdeur naar garage;
– Voldoende opbergruimte door aanwezigheid van inpandige garage, bijkeuken, zolder, trapkast en tuinhuis;
– In 2021 is de keuken vernieuwd, meterkast, nieuwe vloeren en nieuw schilder- en behangwerk;
– In 2022 is het plat dak van de garage, bijkeuken en keuken vernieuwd en extra geïsoleerd, alsook plat dak van het dakkapel aan de voorzijde;
– In 2023 zijn er 10 zonnepanelen geplaatst en 3 airco’s;
– 4 slaapkamers;
– Kindvriendelijke omgeving;
– Alle dagelijkse voorzieningen binnen handbereik;
– Goede bereikbaarheid door ligging nabij A73 binnen 10 autominuten;
Omgeving:
Sint Odiliënberg is een van de kernen van de gemeente Roerdalen (Herkenbosch, Melick, Montfort, Posterholt, Sint Odiliënberg en Vlodrop). Het dorp langs de Roer heeft circa 3.500 inwoners en kenmerkt zich door de uitgestrektheid in een landelijke en groene omgeving. Sint Odiliënberg heeft voldoende voorzieningen. Zo beschikt Sint Odiliënberg over een bassischool, supermarkt, bakker, huisartsenpraktijk, tandarts en sporthal. Roermond met het uitgebreide voorzieningen is binnen tien autominuten bereikbaar. Tevens ligt Sint Odiliënberg gunstig t.o.v. de Duitse grens en autosnelwegen (A73 en A2), steden zoals Heerlen, Sittard, Maastricht, Eindhoven en Venlo zijn op circa 40 autominuten te bereiken.
Perfect onderhouden en grotendeels gemoderniseerde, ruime twee-onder-een-kapwoning op een mooi hoekperceel van circa 429 m2. De afgelopen jaren, vanaf 2021, zijn er veel investeringen gedaan door de eigenaar, denk onder andere aan een nieuwe keuken, nieuwe vloeren begane grond en bovenverdieping, nieuw schilderwerk en behangwerk, vernieuwing plat dak, plaatsen van…

Kenmerken
- Status Beschikbaar
- Vraagprijs € 385.000,- k.k.
- Aanvaarding In overleg
- Soort woonhuis Twee onder een kapwoning
- Soort bouw Bestaande bouw
- Bouwjaar 1988
- Soort dak Zadeldak
- Onderhoud binnen Goed
- Onderhoud buiten Goed
- Gebruiksoppervlakte wonen ca. 132 m2
- Externe bergruimte ca. 9 m2
- Overige inpandige ruimte ca. 19 m2
- Inhoud ca. 515 m3
- Perceeloppervlakte ca. 429 m2
- Aantal kamers 5 kamers
- Aantal slaapkamers 4
- Aantal badkamers 1 badkamer
- Badkamervoorzieningen Ligbad, toilet, wastafel
- Aantal woonlagen 3 woonlagen
- Voorzieningen Tv kabel, buitenzonwering, airconditioning, dakraam, glasvezel kabel, zonnepanelen
- Energielabel B
- Isolatie Dakisolatie, muurisolatie, dubbel glas
- Verwarming Cv ketel
- Warm water Cv ketel
- C.v.-ketel type Gas
- C.v.-ketel bouwjaar 2019
- Eigendom Eigendom
- Ligging Aan park, in woonwijk
- Hoofdtuin Achtertuin
- Oppervlakte hoofdtuin ca. 232 m2
- Ligging hoofdtuin Zuid
- Achterom Ja
- Kwaliteit tuin Normaal
- Schuur / berging Vrijstaand hout
- Aantal schuren / bergingen 1
- Parkeerfaciliteiten Openbaar parkeren, op eigen terrein
- Garage Inpandig
Plattegronden





Cijfers voor de wijk
Burgerlijke staat
- Gehuwd 1390
- Ongehuwd 985
- Gescheiden 205
- Verweduwd 230
Leeftijd in gemeente
- 0-15 13%
- 15-15 10%
- 25-45 20%
- 45-65 33%
- 65+ 25%
Leeftijd buurtbewoners
- 0-15 13%
- 15-15 9%
- 25-45 18%
- 45-65 31%
- 65+ 30%
Benieuwd naar de waarde van je woning?
Maak dan een afspraak voor een gratis waardebepaling zonder verplichtingen.
Downloads
Even binnenkijken?
Neem vrijblijvend contact met ons op.
