Terug naar overzicht
Gronsveld

Dokter Poelsstraat 6

€ 425.000, - k.k.

Aan de Dokter Poelsstraat 6 in Gronsveld ligt deze vrijstaande woning met eigen oprit, souterrain, ruime zolder en diverse berg en stallingsruimtes. De woning beschikt over drie slaapkamers, een praktische indeling en biedt volop mogelijkheden voor wie op zoek is naar een woning die naar eigen wens gemoderniseerd kan worden. Dankzij de rustige ligging in een geliefde woonomgeving betreft dit een fijne woning met veel potentie én karakter.

Wat deze woning extra bijzonder maakt, zijn de karakteristieke elementen die nog aanwezig zijn, waaronder het voormalige stalletje naast de woning. Dit soort details geven het geheel een authentieke uitstraling en bieden tegelijkertijd mooie kansen om hier jouw thuis van te maken. Het stalletje naast de woning heeft een oppervlakte van (ca. 23 m²) en biedt daarmee interessante mogelijkheden, zoals het realiseren van een studio, praktijkruimte aan huis of bijvoorbeeld een Bed & Breakfast.

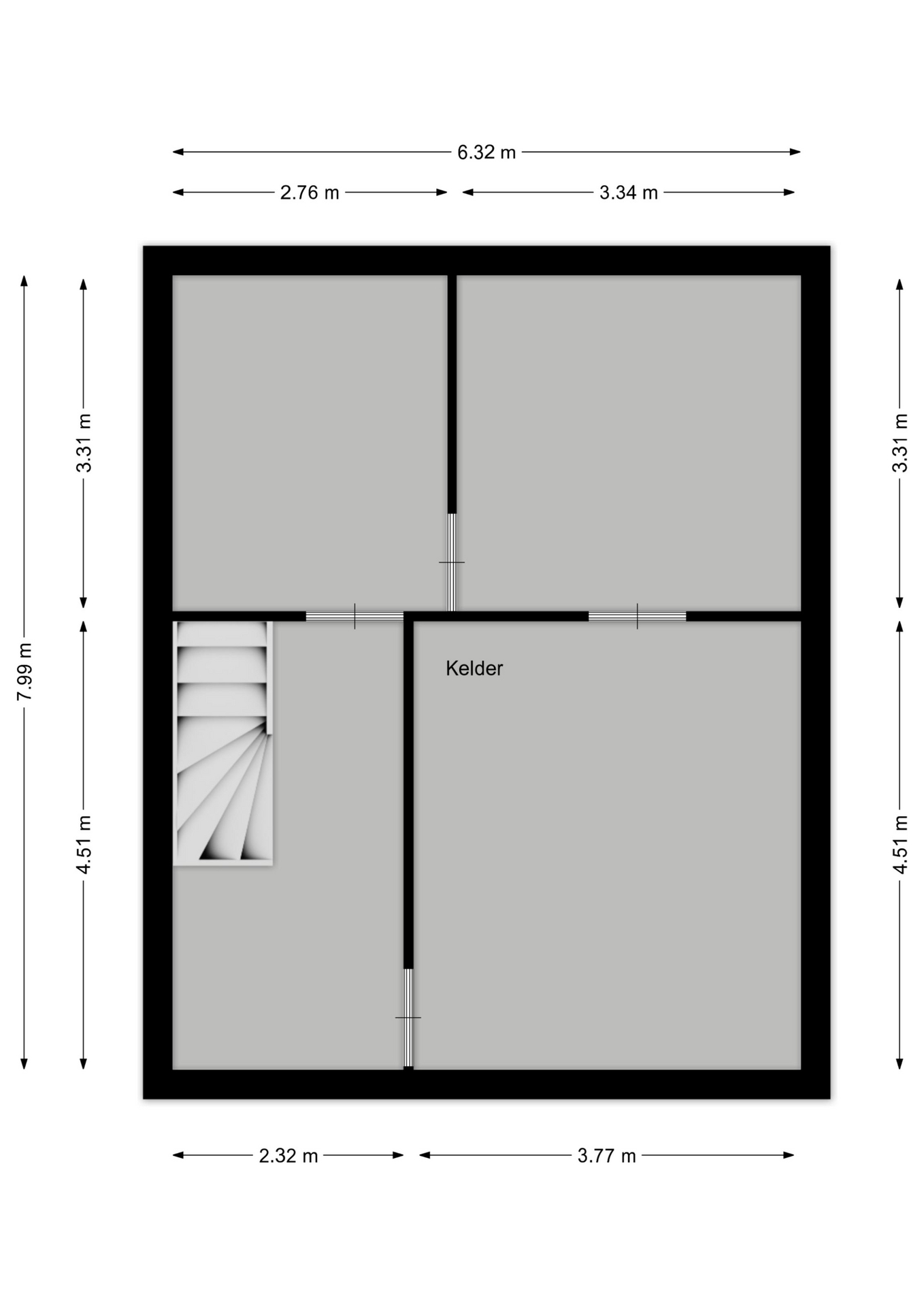
Souterrain:
Vanuit de woning is het souterrain bereikbaar. Deze verdieping bestaat uit meerdere kelderruimtes en biedt volop praktische bergruimte. Ideaal voor opslag, provisie, hobby of het stallen van spullen.

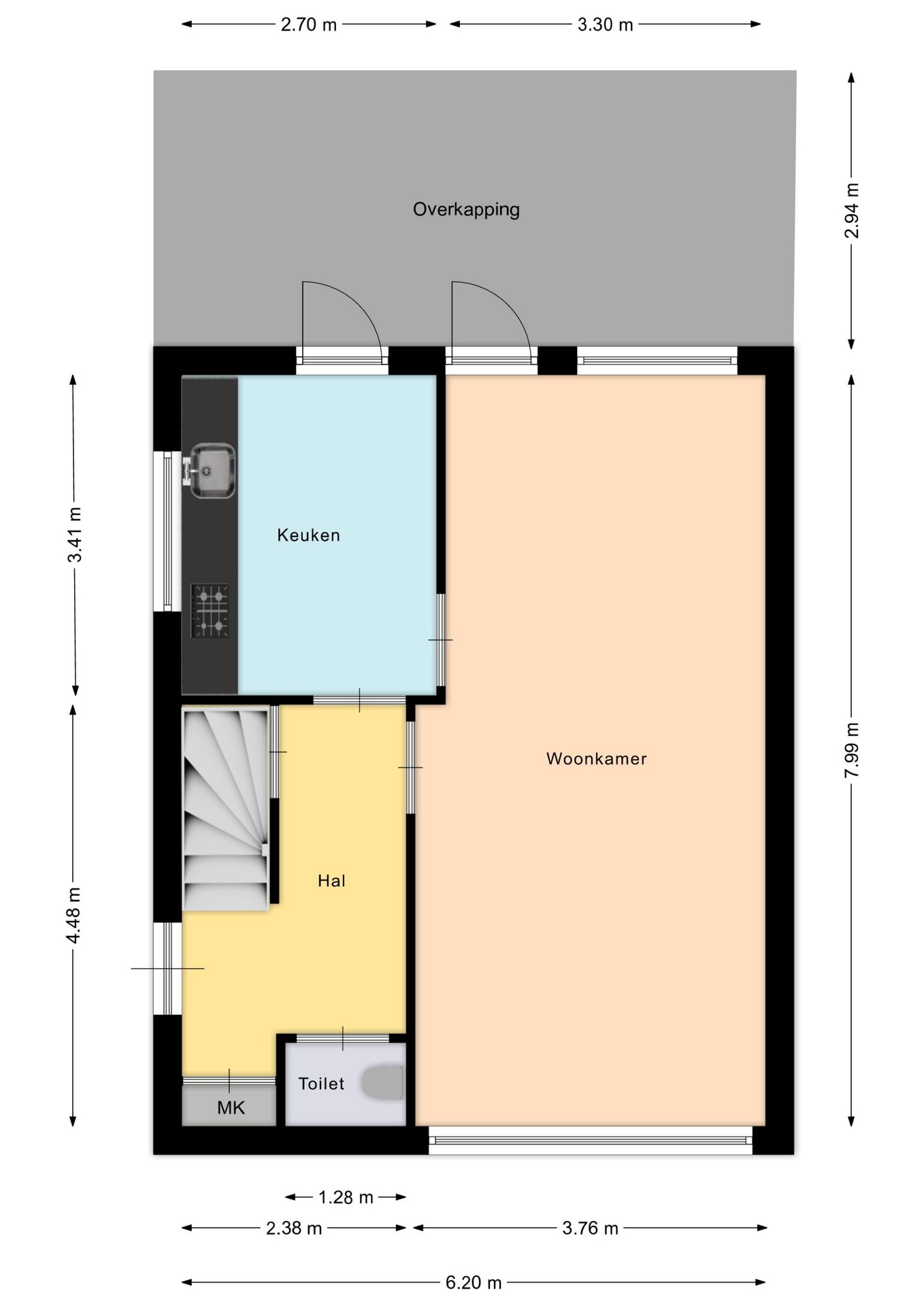
Begane grond:
Via de entree komt u in de hal met meterkast, trapopgang naar de eerste verdieping, trap naar de kelder en toegang tot de verschillende vertrekken. De woonkamer (ca. 29 m²) is een sfeervolle en lichte leefruimte met grote raampartijen aan de voor- en achterzijde. De ruimte heeft een prettige indeling en biedt voldoende plaats voor zowel een zit- als eethoek. De gesloten keuken (ca. 9 m²) is uitgevoerd in een praktische hoekopstelling en voorzien van een gasfornuis, afzuigkap en spoelbak. Vanuit de keuken is er directe toegang tot de tuin.

Eerste verdieping:
Vanaf de overloop zijn drie slaapkamers bereikbaar (ca. 13 m², 10 m² en 11 m²). Daarnaast bevindt zich op deze verdieping de badkamer (ca. 5 m²), voorzien van een douche, wastafel en toilet. Tevens is vanaf de overloop een bergkast bereikbaar en bevindt zich hier de vlizotrap naar de zolderverdieping.

Zolder:
Middels een vlizotrap is de ruime zolderverdieping (ca. 26 m²) bereikbaar. De zolder is voorzien van een dakraam en hier bevindt zich tevens de opstelplaats van de cv-ketel.

Tuin:
De woning beschikt over een ruime oprit langs de woning en een overkapping direct aan de woning. Achter in de tuin bevindt zich een grote stallings-/bergruimte, ideaal voor opslag of hobbydoeleinden. Daarnaast is er naast de woning nog een extra bergruimte aanwezig.

Bijzonderheden:
– Vrijstaande woning
– Gelegen op een rustige locatie in Gronsveld
– Drie slaapkamers
– Ruime zolderverdieping
– Souterrain met meerdere kelderruimtes
– Eigen oprit
– Grote stallings-/bergruimte aanwezig
– Stallingsruimte naast de woning ca. 23 m² met diverse gebruiksmogelijkheden
– Voorzien van rolluiken op de begane grond
– Cv-ketel: Remeha Quinta (2005, eigendom)
– Eventuele functiewijzigingen, zoals gebruik als studio, praktijkruimte of Bed & Breakfast, zijn afhankelijk van de
geldende bestemmingsplanregels en eventuele vergunningen
– Alle maten zijn indicatief en kunnen afwijken van de werkelijkheid

Omgeving:
De woning is gelegen in Gronsveld, een sfeervol en geliefd dorp in de gemeente Eijsden-Margraten, in het zuidwesten van Limburg. Gronsveld ligt gunstig ten opzichte van Maastricht, Eijsden en Rijckholt en staat bekend om zijn dorpse karakter, tradities en prettige woonomgeving. In de directe omgeving is het heerlijk wandelen, onder andere in het nabijgelegen Savelsbos. Daarnaast beschikt het dorp over diverse dagelijkse voorzieningen, zoals een bakker, patisserie, slager, supermarkt en een doe-het-zelfzaak. Ook zijn er een basisschool, peuterschool en twee kinderopvanglocaties aanwezig. De ligging ten opzichte van uitvalswegen is bovendien zeer gunstig. Het centrum van Maastricht, het MUMC+ (AZM) en de Universiteit Maastricht zijn al binnen circa 10 autominuten bereikbaar.

Aan de Dokter Poelsstraat 6 in Gronsveld ligt deze vrijstaande woning met eigen oprit, souterrain, ruime zolder en diverse berg en stallingsruimtes. De woning beschikt over drie slaapkamers, een praktische indeling en biedt volop mogelijkheden voor wie op zoek is naar een woning die naar eigen wens gemoderniseerd kan worden.

Kenmerken

  • Status Beschikbaar
  • Vraagprijs € 425.000,- k.k.
  • Aanvaarding In overleg
  • Soort woonhuis Vrijstaande woning
  • Soort bouw Bestaande bouw
  • Bouwjaar 1979
  • Soort dak Zadeldak
  • Onderhoud binnen Goed
  • Onderhoud buiten Goed
  • Gebruiksoppervlakte wonen ca. 100 m2
  • Oppervlakte gebouwgebonden ca. 20 m2
  • Externe bergruimte ca. 142 m2
  • Overige inpandige ruimte ca. 73 m2
  • Inhoud ca. 561 m3
  • Perceeloppervlakte ca. 566 m2
  • Aantal kamers 5 kamers
  • Aantal slaapkamers 3
  • Aantal badkamers 1 badkamer
  • Badkamervoorzieningen Toilet, douche, wastafel
  • Aantal woonlagen 4 woonlagen
  • Voorzieningen Rolluiken, rookkanaal, dakraam
  • Energielabel D
  • Isolatie Dakisolatie, muurisolatie
  • Verwarming Cv ketel
  • Warm water Cv ketel
  • C.v.-ketel type Gas
  • C.v.-ketel bouwjaar 2005
  • Eigendom Eigendom
  • Ligging Aan rustige weg, in woonwijk
  • Hoofdtuin Achtertuin
  • Oppervlakte hoofdtuin ca. 345 m2
  • Ligging hoofdtuin Noord
  • Kwaliteit tuin Normaal
  • Schuur / berging Vrijstaand steen
  • Aantal schuren / bergingen 2
  • Parkeerfaciliteiten Op eigen terrein
  • Garage Geen garage
Meer kenmerken Minder kenmerken

Plattegronden

Statistieken

Cijfers voor de wijk

Burgerlijke staat

  • Gehuwd
  • Ongehuwd
  • Gescheiden
  • Verweduwd

Leeftijd in gemeente

Leeftijd buurtbewoners

  • 0-15 14%
  • 15-15 12%
  • 25-45 18%
  • 45-65 34%
  • 65+ 22%

Benieuwd naar de waarde van je woning?

Maak dan een afspraak voor een gratis waardebepaling zonder verplichtingen.

Even binnenkijken?

Neem vrijblijvend contact met ons op.