Terug naar overzicht
Maastricht

Désiré Leesensstraat 38

€ 325.000, - k.k.

Aan de Désiré Leesensstraat 38 in Maastricht ligt deze ruime hoekwoning met aanbouw, diepe achtertuin en volop mogelijkheden. De woning is gelegen in een rustige en groene woonomgeving en vormt een uitstekende basis voor wie op zoek is naar een woning die naar eigen wens gemoderniseerd kan worden. Met een royale leefruimte, drie slaapkamers en een ruime tuin is dit een ideale gezinswoning met veel potentie.

INDELING

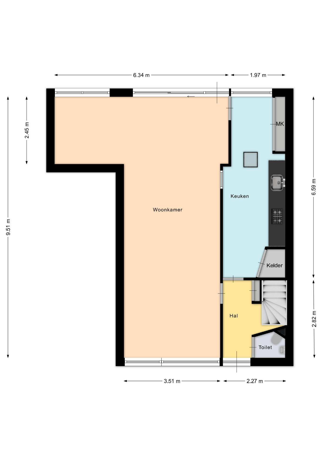
Begane grond:
Via de entree bereikt u de hal met toegang tot de meterkast, de trapopgang naar de eerste verdieping, de woonkamer en de keuken. De ruime doorzonwoonkamer met aanbouw (ca. 40 m²) beschikt over een open haard en grote raampartijen, wat zorgt voor veel lichtinval. Aan de achterzijde bevindt zich de aanbouw met een schuifpui die directe toegang biedt tot de tuin.

De separate keuken (ca. 12 m²) is voorzien van een gasfornuis, spoelbak en afzuigkap en biedt mogelijkheden voor modernisering naar eigen smaak. Vanuit de keuken is er toegang tot zowel de hal als de tuin.

Eerste verdieping:
Vanaf de overloop zijn drie slaapkamers bereikbaar (ca. 13 m², 10 m² en 6 m²), allen met een prettige lichtinval. De badkamer (ca. 4 m²) is eenvoudig uitgevoerd en voorzien van een douche en wastafel.

Zolder:
Via een vaste trap is de zolderverdieping bereikbaar. Deze ruimte kan gebruikt worden als bergruimte en biedt volop praktische opslagmogelijkheden.

Tuin:
De woning beschikt over een diepe en groene achtertuin met veel privacy. Daarnaast zijn er twee bergingen aanwezig van ca. 10 m² en 17 m².

Bijzonderheden:
– Ruime hoekwoning met aanbouw
– Veel potentie en naar eigen wens te moderniseren
– Drie slaapkamers
– Doorzonwoonkamer met open haard
– Diepe achtertuin
– Gelegen in een rustige en groene woonomgeving
– Cv-ketel: Nefit Trendline (2014, eigendom)
– Alle maten zijn indicatief en kunnen afwijken van de werkelijkheid

Omgeving:
In de directe omgeving bevinden zich diverse voorzieningen, waaronder de winkelcentra ‘De Leim’ en ‘De Roserije’, kindcentrum ‘De Vlinderboom’ en middelbare school ‘Porta Mosana’. Daarnaast is het stadscentrum goed bereikbaar en zijn er uitstekende verbindingen via uitvalswegen richting Valkenburg, Luik, Heerlen en Eindhoven.

Aan de Désiré Leesensstraat 38 in Maastricht ligt deze ruime hoekwoning met aanbouw, diepe achtertuin en volop mogelijkheden. De woning is gelegen in een rustige en groene woonomgeving en vormt een uitstekende basis voor wie op zoek is naar een woning die naar eigen wens gemoderniseerd kan worden. Met een…

Kenmerken

  • Status Beschikbaar
  • Vraagprijs € 325.000,- k.k.
  • Aanvaarding In overleg
  • Soort woonhuis Hoekwoning
  • Soort bouw Bestaande bouw
  • Bouwjaar 1962
  • Onderhoud binnen Redelijk
  • Onderhoud buiten Goed
  • Gebruiksoppervlakte wonen ca. 101 m2
  • Externe bergruimte ca. 36 m2
  • Overige inpandige ruimte ca. 25 m2
  • Inhoud ca. 437 m3
  • Perceeloppervlakte ca. 320 m2
  • Aantal kamers 6 kamers
  • Aantal slaapkamers 3
  • Aantal badkamers 1 badkamer
  • Badkamervoorzieningen Douche, wastafel
  • Aantal woonlagen 4 woonlagen
  • Voorzieningen Schuifpui
  • Energielabel D
  • Verwarming Cv ketel
  • Warm water Cv ketel
  • C.v.-ketel type Gas
  • C.v.-ketel bouwjaar 2014
  • Eigendom Eigendom
  • Ligging Aan rustige weg
  • Hoofdtuin Achtertuin
  • Oppervlakte hoofdtuin ca. 135 m2
  • Ligging hoofdtuin West
  • Kwaliteit tuin Normaal
  • Schuur / berging Vrijstaand steen
  • Aantal schuren / bergingen 2
  • Parkeerfaciliteiten Openbaar parkeren
  • Garage Geen garage
Meer kenmerken Minder kenmerken

Plattegronden

Statistieken

Cijfers voor de wijk

Burgerlijke staat

  • Gehuwd
  • Ongehuwd
  • Gescheiden
  • Verweduwd

Leeftijd in gemeente

Leeftijd buurtbewoners

  • 0-15 11%
  • 15-15 15%
  • 25-45 22%
  • 45-65 31%
  • 65+ 20%

Benieuwd naar de waarde van je woning?

Maak dan een afspraak voor een gratis waardebepaling zonder verplichtingen.

Even binnenkijken?

Neem vrijblijvend contact met ons op.