Terug naar overzicht
Landgraaf

Charles Frehenstraat 59

€ 275.000, - k.k.

Op een rustige en geliefde woonlocatie mogen wij u deze speelse split-level woning aanbieden, voorzien van 4 slaapkamers, oprit, berging en een verzorgde tuin met overkapping. De woning is gelegen aan een verkeersluw woonerf en biedt een verrassend ruime indeling verdeeld over meerdere niveaus. U vindt deze woning aan de Charles Frehenstraat 59 te Landgraaf/ Ubach Over Worms.

Indeling:

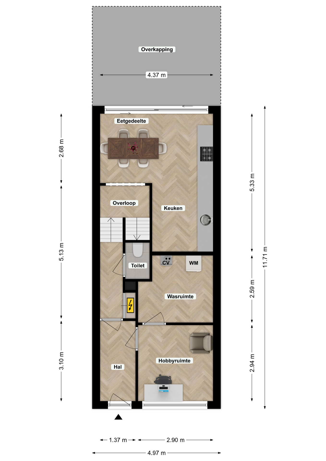
Niveau 0:
Via de overdekte entree bereikt u de ontvangsthal met garderobe, vernieuwde meterkast en een modern, geheel betegeld vrijhangend toilet met fonteintje en mechanische afzuiging.
Daarnaast bevindt zich op dit niveau een separate wasruimte met aansluitingen voor witgoed, opstelplaats van de cv-ketel (huur, bwj. 2014) en de omvormer t.b.v. 12 zonnepanelen. De extra kamer op dit woonniveau, kan gebruikt worden als slaapkamer of kantoor en is tevens voorzien van airconditioning.

Niveau 0,5:
De royale woonkeuken is een echte eyecatcher: recent vernieuwd, uitgevoerd in een moderne stijl en uitgerust met hoogwaardige inbouwapparatuur, waaronder een vaatwasser, oven, combimagnetron, bordenwarmer en een inductiekookplaat met geïntegreerde afzuiging. De keuken beschikt tevens over een tv-aansluiting.

Niveau 1:
De gezellige, vierkante woonkamer beschikt over een siergrindvloer, een verlaagd plafond met geïntegreerde ledverlichting en een royale raampartij aan de voorzijde, wat zorgt voor een prachtige lichtinval. Daarnaast is de woonkamer uitgerust met een geïntegreerd surround-audiosysteem.

Niveau 1,5:
Via een melkglazen deur bereikt u de tussenliggende overloop met toegang tot de hoofdslaapkamer (voorzien van airco) en de aangrenzende badkamer. De volledig betegelde badkamer is uitgerust met elektrische vloerverwarming, een whirlpool, tweede vrijhangend toilet, wastafel en een inloopdouche met hardglazen deur en mechanische afzuiging.

Niveau 2:
Op de bovenste verdieping bevindt zich een overloop met diepe bergkast en toegang tot twee ruime slaapkamers (3 en 4). Beide slaapkamers beschikken over rolluiken en een verlaagd plafond met inbouwverlichting.

Tuin:
Via de dubbele schuifpui in de woonkamer en het poortje aan de achterzijde bereikt u de onderhoudsvriendelijke tuin, die is aangelegd op twee niveaus. De tuin is zorgvuldig ingericht en beschikt over een praktische aluminium buitenberging. Onder de ruime overkapping, voorzien van ledverlichting en een elektrisch bedienbaar screen, kunt u het hele jaar door beschut en comfortabel buiten zitten.

Bijzonderheden:
– De woning is zeer centraal, doch rustig gelegen op loopafstand van het winkelcentrum van “Waubach” en aan de karakteristieke Charles Frehenstraat;
– Scholen zijn in de nabije omgeving gelegen;
– De gehele woning is voorzien van kunststof kozijnen en dubbele beglazing;
– De woning is voorzien van 12 zonnepanelen in eigendom (bwj. 2023, 405 WP);
– De luxe keuken is vernieuwd in 2023;
– De woning is voorzien van 4 airco’s;
– Het betreft een speelse woning (splitlevel);
– De woning is verrassend ruim;
– Zonnige tuin op het zuidoosten!

Op een rustige en geliefde woonlocatie mogen wij u deze speelse split-level woning aanbieden, voorzien van 4 slaapkamers, oprit, berging en een verzorgde tuin met overkapping. De woning is gelegen aan een verkeersluw woonerf en biedt een verrassend ruime indeling verdeeld over meerdere niveaus. U vindt deze woning aan de…

Kenmerken

  • Status Verkocht onder voorbehoud
  • Vraagprijs € 275.000,- k.k.
  • Aanvaarding In overleg
  • Soort woonhuis Tussenwoning
  • Soort bouw Bestaande bouw
  • Bouwjaar 1970
  • Soort dak Plat dak
  • Onderhoud binnen Goed
  • Onderhoud buiten Goed
  • Gebruiksoppervlakte wonen ca. 123 m2
  • Oppervlakte gebouwgebonden ca. 19 m2
  • Externe bergruimte ca. 6 m2
  • Inhoud ca. 480 m3
  • Perceeloppervlakte ca. 112 m2
  • Aantal kamers 5 kamers
  • Aantal slaapkamers 4
  • Aantal badkamers 1 badkamer
  • Badkamervoorzieningen Toilet, wastafel, inloopdouche, vloerverwarming
  • Aantal woonlagen 5 woonlagen
  • Voorzieningen Tv kabel, airconditioning, schuifpui, zonnepanelen
  • Energielabel A
  • Isolatie Dubbel glas
  • Verwarming Cv ketel, vloerverwarming gedeeltelijk
  • Warm water Cv ketel
  • C.v.-ketel type Gas
  • C.v.-ketel bouwjaar 2014
  • Eigendom Huur
  • Ligging In woonwijk
  • Hoofdtuin Achtertuin
  • Oppervlakte hoofdtuin ca. 40 m2
  • Ligging hoofdtuin Zuidoost
  • Achterom Ja
  • Kwaliteit tuin Verzorgd
  • Schuur / berging Box
  • Aantal schuren / bergingen 1
  • Parkeerfaciliteiten Openbaar parkeren
  • Garage Geen garage
Meer kenmerken Minder kenmerken

Plattegronden

Statistieken

Cijfers voor de wijk

Burgerlijke staat

  • Gehuwd 1245
  • Ongehuwd 990
  • Gescheiden 285
  • Verweduwd 390

Leeftijd in gemeente

  • 0-15 13%
  • 15-15 10%
  • 25-45 21%
  • 45-65 33%
  • 65+ 23%

Leeftijd buurtbewoners

  • 0-15 11%
  • 15-15 7%
  • 25-45 17%
  • 45-65 30%
  • 65+ 35%

Benieuwd naar de waarde van je woning?

Maak dan een afspraak voor een gratis waardebepaling zonder verplichtingen.

Even binnenkijken?

Neem vrijblijvend contact met ons op.