Terug naar overzicht
Stevensweert

Bilt 12

€ 365.000, - k.k.

Wonen op een eiland in de Maas? Dat is mogelijk in Stevensweert en dan ook aan de rand van het dorp namelijk Op ’t Bilt, zoals dat ter plaatse heet. Stevensweert ligt direct aan de Maas en wordt grotendeels omsloten door zijtakken van de Maas en de Maasplassen. Hier houden de inwoners van rust en van de nabijheid van water en natuur, maar niet van eenzaamheid. Deze straat met slechts aan een zijde bebouwing ademt een rustige, landelijke sfeer uit. Dit vrijstaande woonhuis uit circa 1870 heeft een lange geschiedenis en was ooit een grote boerderij met stallen en heel veel weilanden. Nu is het een woonboerderijtje met veel mogelijkheden dat het weer verdient om in oude eer hersteld te worden. Hier kunnen veel woonwensen ingevuld worden, zoals een grote leefkeuken en een gezellige woonkamer. De aanpandige schuur biedt plek voor een of twee auto’s, of een camper, of noem het maar op. Hierachter staan de resten van een vroegere stal, waarvan het dak gesaneerd moest worden. Deze resten zijn bewust blijven staan, zodat dit voor een volgende bewoner mogelijkheden geeft om opnieuw een bijbouw te zetten. Hierachter ligt een extra perceel van circa 2.174 m² en er zijn geen directe achterburen. Aan de voorzijde van het huis liggen akkers en weilanden tot aan de Oude Maas.

Indeling:

Begane grond:
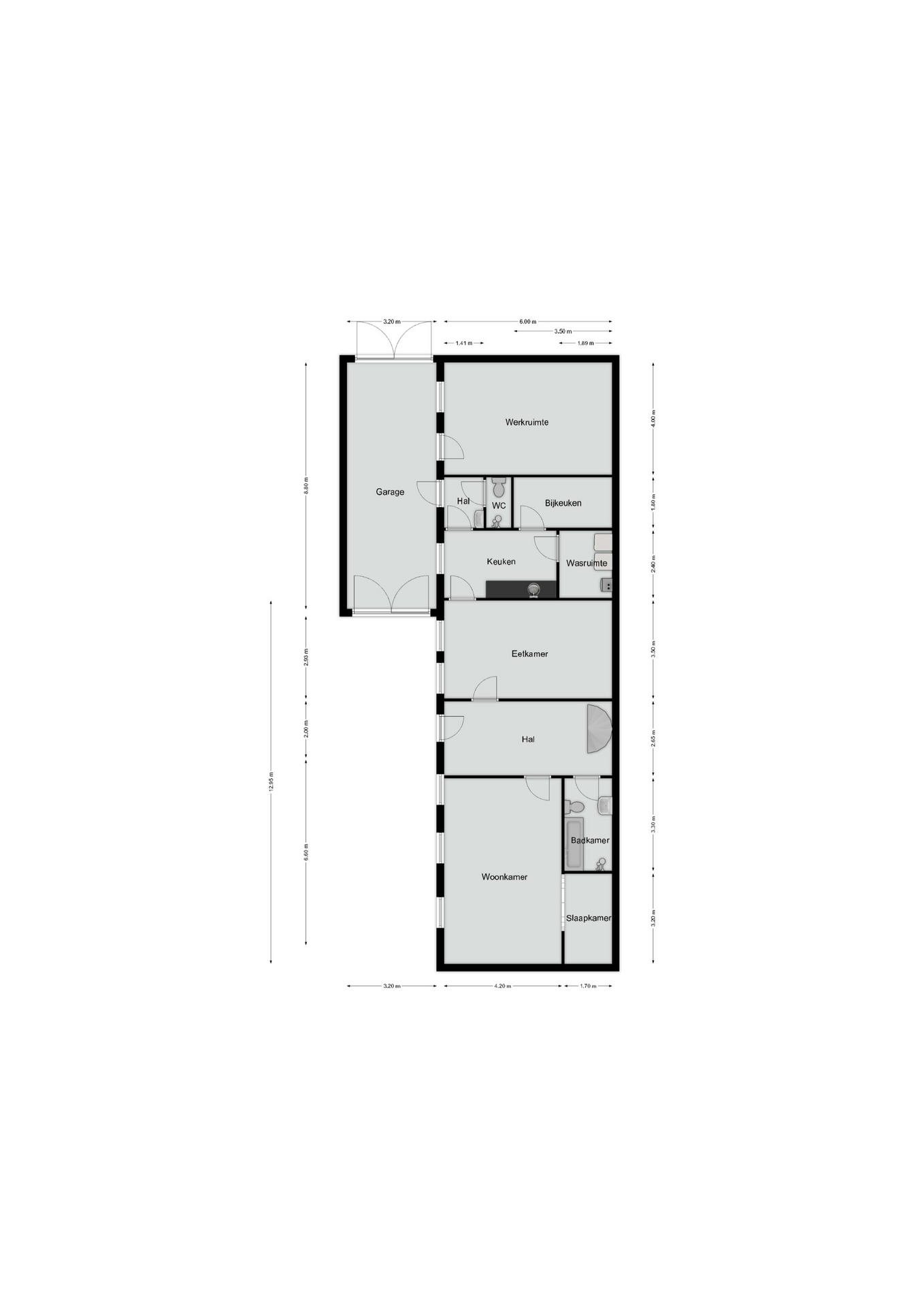
Ruime ontvangsthal met trap naar eerste verdieping, tegelvloer en vernieuwde meterkast. Vanuit de hal is er toegang tot de woonkamer aan de voorzijde van het huis. Deze woonkamer heeft een tegelvloer en deels veldbrandsteen wanden, de ruimte is L-vormig en heeft een oppervlakte van ongeveer 33 m². Vanuit de hal is er ook toegang tot de badkamer, deze is grotendeels betegeld en heeft een ligbad, douche, wastafel en een toilet. Vanuit de hal is er ook toegang tot de eetkamer met gashaard, deze is 21m². Direct aansluitend ligt de keuken 10m² met een eenvoudige keukenopstelling met een gasfornuis inclusief oven en een afzuigkap. De keuken geeft toegang tot een provisieruimte en een separate wasruimte, hier is tevens de combi c.v.-installatie Nefit Excellence (eigendom) geplaatst. Na de keuken is er nog een halletje met wastafel en aansluitend een eenvoudige toiletruimte met toilet en douche. De inpandig bereikbare schuur is 28 m² en kan gebruikt worden als garage of voor stallen van een camper, boot, aanhangwagen enz. Vanuit de schuur is er nog een afzonderlijke berging toegankelijk, die als werkplaats/magazijn werd gebruikt.

Eerste verdieping:
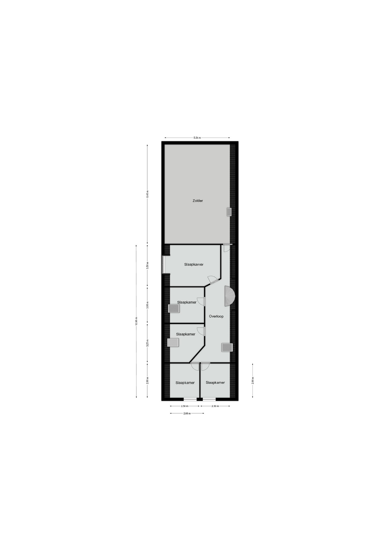
De overloop biedt toegang tot vijf slaapkamers, waarvan twee slaapkamers geen verwarming hebben. De slaapkamers zijn respectievelijk 16m², 10m², 10m² en 9m². Vanaf de overloop is er een doorgang naar de voormalige hooizolder van 46 m².

De indeling van dit huis is zeker niet standaard, dat maakt dit huis juist bijzonder en maakt ook andere indelingen mogelijk. We begrijpen dat het moeilijk omschreven is, maar kijk daarom ook goed naar de plattegronden, zodat duidelijker is hoe de ruimtes ten opzichte van elkaar liggen en hoe ze met elkaar verbonden zijn. En natuurlijk zorgt een bezichtiging voor het allerbeste beeld.

Buiten:
Voor en naast het huis is voldoende ruimte voor het parkeren van auto’s of voor het aanleggen van een voortuin/zijtuin. Achter de schuur staan de resten van een vroegere stal, waarvan het dak gesaneerd moest worden. Deze gevels zijn bewust blijven staan, zodat dit voor een volgende bewoner mogelijkheden geeft om opnieuw een bijgebouw in gebruik te kunnen nemen. De afmetingen van deze vroegere stal zijn 10 m x 23 m.

Hierachter ligt het bijbehorende perceel van 2.174 m², dit heeft een diepte van ongeveer 55 meter en een breedte van deels 42 meter en deels 34 meter breed. Dit perceel is omheind en werd voorheen gebruikt om boten te stallen, voor dit gebruik is het perceel destijds verhard. Dit is een mooie plek die geschikt gemaakt kan worden voor het houden van bijvoorbeeld een paard, pony of ander kleinvee. Mocht een kandidaat gecharmeerd zijn van dit huis, maar dit perceel te groot vinden, dan zijn er buren die geïnteresseerd zijn in dit perceel of een deel ervan. Maar deze beslissing laten we liever over aan de volgende eigenaar van Bilt 12.

Bijzonderheden:
* Rustige locatie waar een dorpse sfeer van rust en landelijkheid heerst in een heel waterrijk gebied.
* De woning moet gerenoveerd worden.
* Bilt 12 bestaat uit twee percelen, een perceel van 1.125 m² en een perceel van 2.174 m², totaal 3.299 m².
* De woning heeft bestemming wonen, de achtergelegen schuur en vroegere stal heeft bestemming Bedrijf met functie-aanduiding “caravanstalling”. Deze informatie kunt u nalezen op omgevingsloket.nl, we hebben ook een samenvatting van deze bestemmingsplanregels in Move geplaatst voor geïnteresseerden.

Ligging:
Het Bilt grenst aan het historische dorp Stevensweert met circa 1.700 inwoners. Dit is een eeuwenoud vestingstadje met straten die deel uitmaken van het beschermd dorpsgezicht. Alle straten lopen naar het middelpunt, als spaken in een wiel, waardoor een karakteristieke bebouwing is ontstaan. De gerestaureerde historische kern van Stevensweert met een beschermd dorpsgezicht ademt een heel eigen sfeer uit, geaccentueerd door eeuwenoude monumenten, een bestrating van klinkers en maaskeitjes, de dorpspomp op de markt, de torenruïne van het kasteel, oude lantaarns en een origineel vestingkanon bij de Maaspoort.

Stevensweert is gelegen in een waterrijke omgeving, direct aan de Maas en de Maasplassen en wordt ook wel het “eilandje in de Maas” genoemd. Er zijn veel mooie wandelingen te maken en diverse fietsroutes die door Stevensweert leiden. Met het fiets/voetgangerspontje dat bij het naastgelegen Ohe en Laak ligt, is ook België snel bereikt. En het schitterende natuurgebied rondom de Molenplas is maar een van de vele mogelijkheden om lekker te wandelen.

Stevensweert heeft diverse voorzieningen zoals basisschool, een rijk verenigingsleven en sportvoorzieningen. De horeca is goed vertegenwoordigd: er zijn diverse restaurantjes en mooie terrasjes.
Daarnaast zijn binnen 5 minuten de uitgebreide winkelcentra van Maasbracht en Echt bereikbaar. Het is gelegen nabij de uitvalswegen en de A2 en A73. Stevensweert is ook per openbaar vervoer (bus) goed bereikbaar.

De watersporter zal in Stevensweert goed worden bediend. De directe ligging aan de Maasplassen, met 3.000 ha. grootste aaneengesloten waterrecreatiegebied van Nederland, biedt een keur aan mogelijkheden en geeft in de zomermaanden een echt vakantiegevoel. Aan de rand van het dorp, bevinden zich twee professioneel uitgeruste jachthavens (een zomerhaven en een winterhaven) met voldoende mogelijkheden om een zeil- of motorboot af te meren.

Wonen op een eiland in de Maas? Dat is mogelijk in Stevensweert en dan ook aan de rand van het dorp namelijk Op ’t Bilt, zoals dat ter plaatse heet. Stevensweert ligt direct aan de Maas en wordt grotendeels omsloten door zijtakken van de Maas en de Maasplassen. Hier houden…

Kenmerken

  • Status Verkocht onder voorbehoud
  • Vraagprijs € 365.000,- k.k.
  • Aanvaarding In overleg
  • Soort woonhuis Vrijstaande woning
  • Soort bouw Bestaande bouw
  • Bouwjaar 1860
  • Soort dak Zadeldak
  • Onderhoud binnen Matig tot redelijk
  • Onderhoud buiten Matig tot redelijk
  • Gebruiksoppervlakte wonen ca. 143 m2
  • Overige inpandige ruimte ca. 125 m2
  • Inhoud ca. 1101 m3
  • Perceeloppervlakte ca. 3299 m2
  • Aantal kamers 7 kamers
  • Aantal slaapkamers 5
  • Aantal badkamers 1 badkamer
  • Badkamervoorzieningen Ligbad, toilet, inloopdouche
  • Aantal woonlagen 2 woonlagen
  • Voorzieningen Rolluiken
  • Energielabel F
  • Isolatie Gedeeltelijk dubbel glas
  • Verwarming Cv ketel
  • Warm water Cv ketel
  • C.v.-ketel type Gas
  • Eigendom Eigendom
  • Ligging Aan rustige weg, vrij uitzicht
  • Hoofdtuin Achtertuin
  • Oppervlakte hoofdtuin ca. 2090 m2
  • Ligging hoofdtuin West
  • Kwaliteit tuin Aan te leggen
  • Parkeerfaciliteiten Op eigen terrein
  • Garage Aangebouwd steen
Meer kenmerken Minder kenmerken

Plattegronden

Statistieken

Cijfers voor de wijk

Burgerlijke staat

  • Gehuwd
  • Ongehuwd
  • Gescheiden
  • Verweduwd

Leeftijd in gemeente

Leeftijd buurtbewoners

  • 0-15 14%
  • 15-15 11%
  • 25-45 22%
  • 45-65 36%
  • 65+ 17%

Benieuwd naar de waarde van je woning?

Maak dan een afspraak voor een gratis waardebepaling zonder verplichtingen.

Even binnenkijken?

Neem vrijblijvend contact met ons op.