Terug naar overzicht
Kerkrade

Bij de Broeders 28

€ 325.000, - k.k.

In de nieuwbouwwijk op Pannesheide ligt dit moderne en duurzaam afgewerkte tussengelegen woonhuis met inpandige garage, omsloten tuin en o.a. drie slaapkamers. Kenmerkend voor deze woning is de verrassende indeling doordat de woonkamer met vide op de eerste verdieping gelegen in open verbinding met de leefkeuken op de begane grond. De ligging is rustig maar de basisvoorzieningen zoals supermarkt, basisschool , wandelgebied en uitvalswegen zijn in de directe omgeving gelegen. Het huis heeft een energielabel A+ en is per direct beschikbaar.

Indeling:
Begane grond:
Oprit, entree, hal mrt doorlopende vloerverwarming, zwevend toilet met fonteintje, bergkast onder de trap en moderne meterkast. De inpandig bereikbare garage heeft een sectionaal poort. De leefkeuken is op de begane grond gesitueerd en beschikt over vloerverwarming en is ingericht met een moderne keuken-installatie verdeeld in kastenwanden en een eiland en voorzien van de volgende apparatuur; inductiekookplaat, combi-oven, afzuigkap, vaatwasser en koelkast. Het ingebouwde koffiezetapparaat is defect. De keuken heeft veel lichtinval door de hoge raampartij en openslaande deuren naar de tuin. De onderhoudsvriendelijke tuin is op het Zuiden gelegen en ingericht met een terras, gazon en een vrijstaand houten tuinhuis.

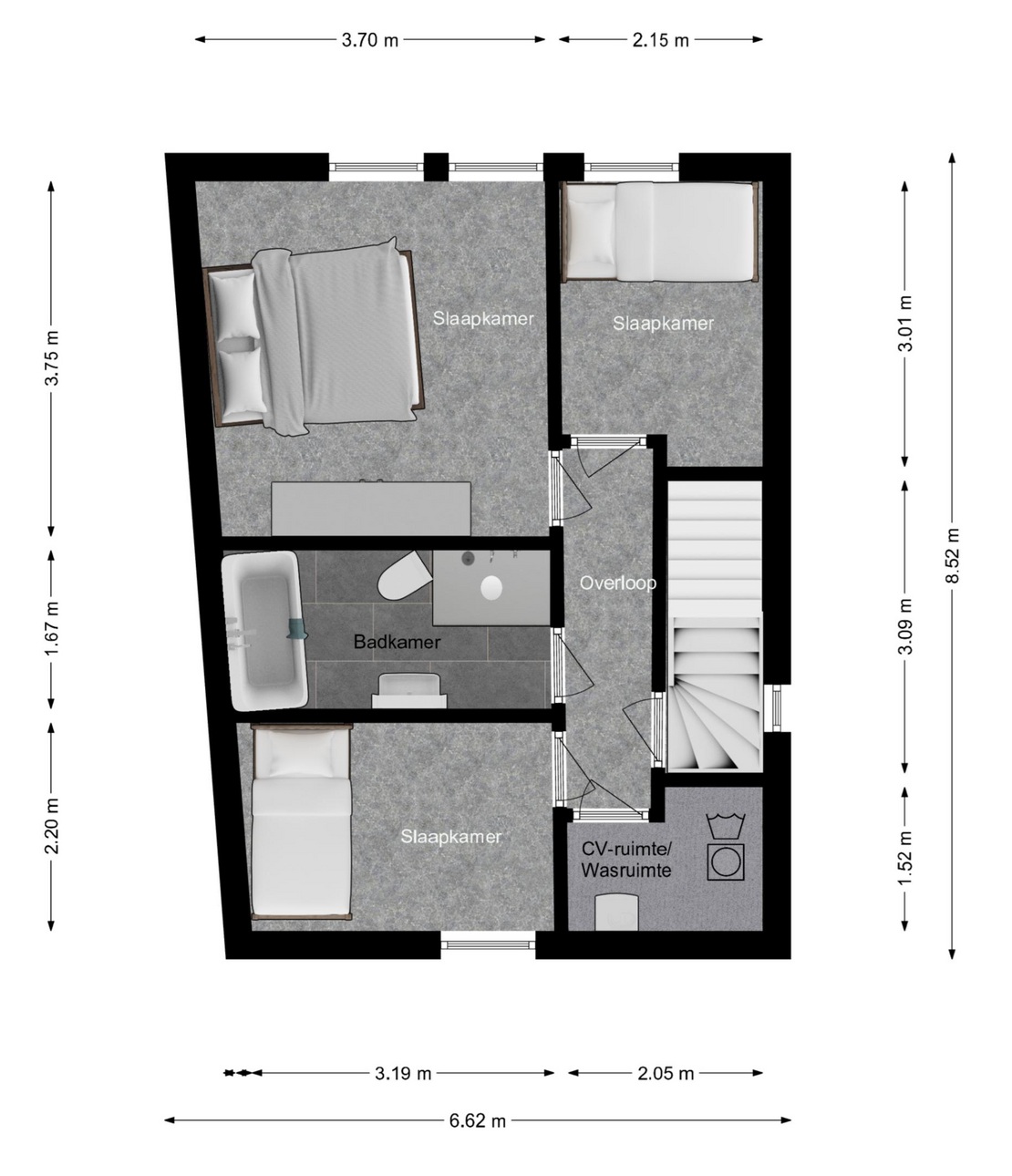
Eerste verdieping;
Open trap naar woonkamer met vide. Tevens bergruimte gecreëerd.

Tweede verdieping;
Open trap naar gesloten slaapverdieping. Overloop, drie slaapkamers en de moderne badkamer met ligbad, douche, badmeubel en 2e toilet. Tevens is er een bergruimte waar de techniek zich bevindt zoals de WtW-installatie en de C.V.-combi-HR installatie.

Bijzonderheden:
* energielabel A;
* geheel geïsoleerd; vloer-, muur- en dakisolatie;
* geheel voorzien van hardhouten kozijnen (verfwerk in 2025);
* met dubbele beglazing;
* meerdere rolluiken aanwezig (gedeeltelijk elektrisch bedienbaar);
* airco-installaties;
* 12 zonnepanelen (eigendom);
* C.V.-combi HR installatie (eigendom);
* warmte-terug-win installatie;
* alaram-installatie;
* aanvaarding in overleg.

In de nieuwbouwwijk op Pannesheide ligt dit moderne en duurzaam afgewerkte tussengelegen woonhuis met inpandige garage, omsloten tuin en o.a. drie slaapkamers. Kenmerkend voor deze woning is de verrassende indeling doordat de woonkamer met vide op de eerste verdieping gelegen in open verbinding met de leefkeuken op de begane grond.

Kenmerken

  • Status Beschikbaar
  • Vraagprijs € 325.000,- k.k.
  • Aanvaarding In overleg
  • Soort woonhuis Tussenwoning
  • Soort bouw Bestaande bouw
  • Bouwjaar 2007
  • Soort dak Plat dak
  • Onderhoud binnen Goed
  • Onderhoud buiten Goed
  • Gebruiksoppervlakte wonen ca. 112 m2
  • Externe bergruimte ca. 8 m2
  • Overige inpandige ruimte ca. 20 m2
  • Inhoud ca. 385 m3
  • Perceeloppervlakte ca. 176 m2
  • Aantal kamers 5 kamers
  • Aantal slaapkamers 3
  • Aantal badkamers 1 badkamer
  • Badkamervoorzieningen Ligbad, toilet, douche, wastafelmeubel
  • Aantal woonlagen 3 woonlagen
  • Voorzieningen Mechanische ventilatie, alarminstallatie, rolluiken, airconditioning, zonnepanelen, balansventilatie
  • Energielabel A
  • Isolatie Dakisolatie, muurisolatie, vloerisolatie
  • Verwarming Cv ketel
  • Warm water Cv ketel
  • C.v.-ketel type Gas
  • Eigendom Eigendom
  • Ligging Aan rustige weg, in woonwijk
  • Schuur / berging Vrijstaand hout
  • Aantal schuren / bergingen 1
  • Parkeerfaciliteiten Openbaar parkeren, op eigen terrein
  • Garage Inpandig
Meer kenmerken Minder kenmerken

Plattegronden

Statistieken

Cijfers voor de wijk

Burgerlijke staat

  • Gehuwd 1710
  • Ongehuwd 1820
  • Gescheiden 480
  • Verweduwd 275

Leeftijd in gemeente

  • 0-15 13%
  • 15-15 9%
  • 25-45 22%
  • 45-65 33%
  • 65+ 24%

Leeftijd buurtbewoners

  • 0-15 14%
  • 15-15 10%
  • 25-45 25%
  • 45-65 33%
  • 65+ 18%

Benieuwd naar de waarde van je woning?

Maak dan een afspraak voor een gratis waardebepaling zonder verplichtingen.

Even binnenkijken?

Neem vrijblijvend contact met ons op.