Terug naar overzicht
Maastricht

Aubeldomein 5 A

€ 340.000, - k.k.

Unieke mogelijkheid om in een recent gerenoveerd appartement te wonen op een centrale locatie in Randwyck! Dit gasloze appartement met 2 woonlagen heeft een hoogwaardige staat van afwerking, 3 slaapkamers, open keuken en grote open leefruimte.

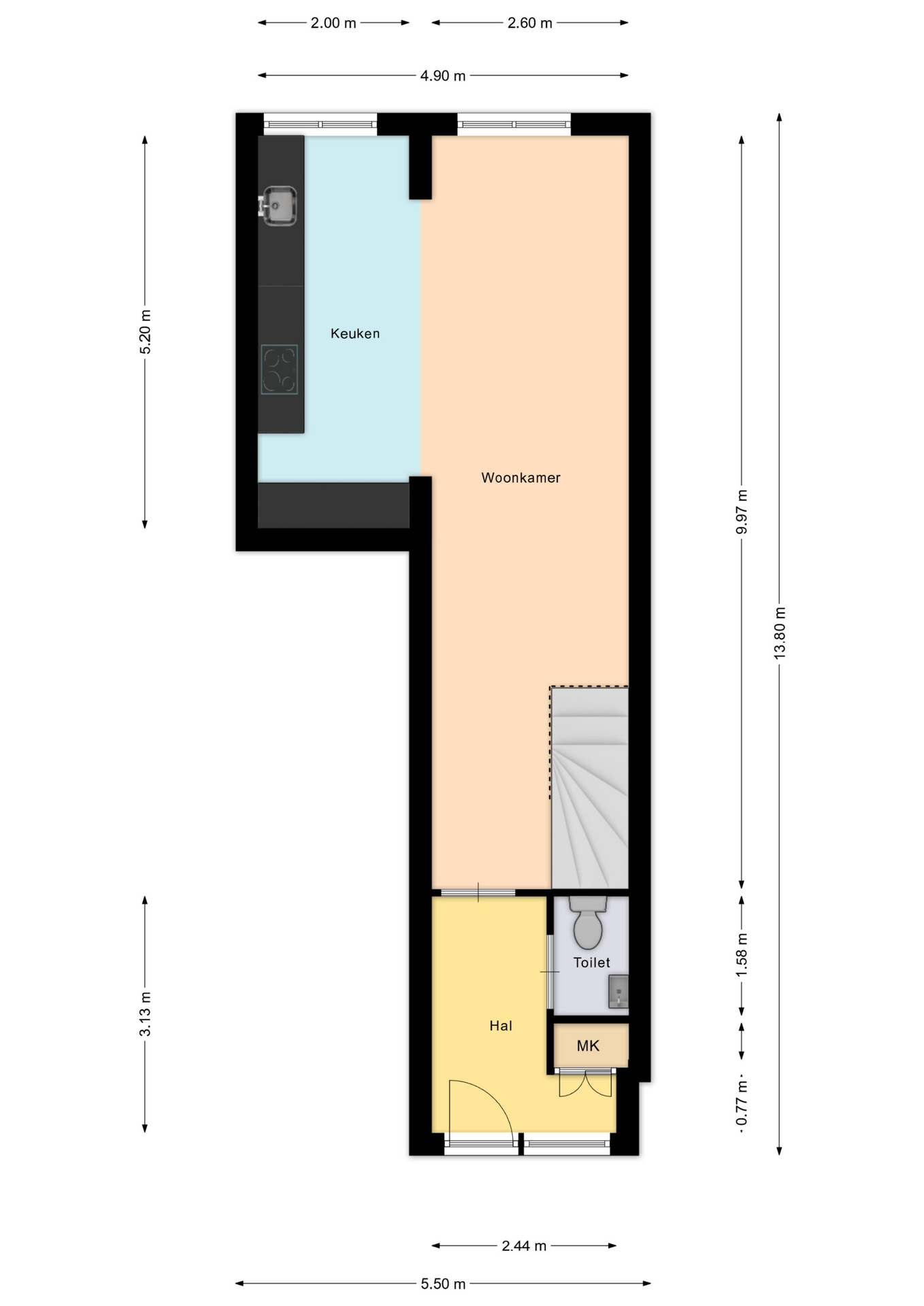
INDELING

Souterrain:
Middels fraaie eikenhouten trap, welke luxueus is uitgevoerd zonder knoesten, is er toegang tot de centrale overloop met toegang tot 3 slaapkamers, badkamer, technische ruimte en voorziening voor wasmachine/droger. De gehele etage is voorzien van een massief eiken parketvloer. De slaapkamers van respectievelijk ca. 11.5, 9.7 en 17.5 m² zijn hoogwaardig afgewerkt, worden automatisch geventileerd, hebben TV aansluiting en beschikken over daglicht. De fraai afgewerkte badkamer (ca. 5.5 m²) heeft een inloopdouche, dubbele wastafel, elektrische vloerverwarming en mechanische ventilatie. In de technische ruimte is de elektrische boiler van 200L aanwezig.

Begane grond:
Mooie entree met toegang tot meterkast en toiletruimte. Middels grote glazen deur is er doorkijk en toegang tot de grote open leefruimte (totaal ca. 35 m²). De keuken en woonkamer staan met elkaar in verbinding en zijn voorzien van een prachtige tegelvloer met grote tegels. De grote keuken is uitgerust met koel-/ vriescombinatie, vaatwasser, combi oven, 4-pits inductiekookplaat en in het plafond geïntegreerde afzuiging.

Bijzonderheden:
– Luxueuze afwerking;
– Comfortabel wonen door modern gebalanceerd ventilatie/verwarmingssysteem;
– Gasloze woning;
– Airconditioning op beide verdiepingen;
– Voorzien van een 200L elektrische boiler (eigendom);
– 3 slaapkamers;
– VVE Kosten: € 100,34 per maand;
– WTW en afzuigkap zijn op afstand bedienbaar middels WiFi verbinding;
– Recent compleet gemoderniseerd;
– Hoge plafonds;
– Volledig geïsoleerd;
– Parkeren op vergunning;
– Er wordt een gezamenlijke fietsenberging gerealiseerd;
– Alle afmetingen zijn indicatief en kunnen geen rechten aan worden ontleend.

Omgeving:
Het appartement is gelegen in de wijk Randwyck, welke beschikt over vele dagelijkse voorzieningen. De wijk kenmerkt zich door de centrale ligging ten opzichte van het centrum van Maastricht, alsook ten opzichte van uitvalswegen richting Eindhoven – Heerlen – Luik. Het winkelcentrum “De Beente” beschikt over alle benodigde winkels als een PLUS supermarkt, het Kruidvat, kapper, Primera/PostNL. Nabij het complex zijn onder meer een gezondheidscentrum, tandarts, apotheek en fysiotherapie. Voorzieningen op het gebied van openbaar vervoer (trein- en busverbindingen) en basis- en voortgezet onderwijs. Het MUMC+, de universiteit en het stadscentrum bevinden zich op korte afstand. Verder liggen de autosnelwegen A2 (Luik – Maastricht – Eindhoven) en A79 (Maastricht – Heerlen – Aken) binnen handbereik. Recreatiemogelijkheden zoals wandelen of fietsen langs de Maas en natuurgebied “De Lage Weerd” liggen in de directe omgeving van de woning.

Unieke mogelijkheid om in een recent gerenoveerd appartement te wonen op een centrale locatie in Randwyck! Dit gasloze appartement met 2 woonlagen heeft een hoogwaardige staat van afwerking, 3 slaapkamers, open keuken en grote open leefruimte. INDELING Souterrain: Middels fraaie eikenhouten trap, welke luxueus is uitgevoerd zonder knoesten,…

Kenmerken

  • Status Beschikbaar
  • Vraagprijs € 340.000,- k.k.
  • Aanvaarding In overleg
  • Soort bouw Bestaande bouw
  • Bouwjaar 1990
  • Soort dak Plat dak
  • Onderhoud binnen Uitstekend
  • Onderhoud buiten Uitstekend
  • Gebruiksoppervlakte wonen ca. 104 m2
  • Inhoud ca. 316 m3
  • Aantal kamers 4 kamers
  • Aantal slaapkamers 3
  • Aantal badkamers 1 badkamer
  • Badkamervoorzieningen Dubbele wastafel, wastafelmeubel, inloopdouche, vloerverwarming
  • Aantal woonlagen 2 woonlagen
  • Voorzieningen Mechanische ventilatie, airconditioning
  • Energielabel A+
  • Isolatie Dakisolatie, muurisolatie, vloerisolatie, hr glas
  • Verwarming Vloerverwarming gedeeltelijk, warmte terugwininstallatie
  • Warm water Elektrische boiler eigendom
  • Ligging In woonwijk
  • Parkeerfaciliteiten Parkeervergunningen
  • Garage Geen garage
Meer kenmerken Minder kenmerken

Plattegronden

Statistieken

Cijfers voor de wijk

Burgerlijke staat

  • Gehuwd
  • Ongehuwd
  • Gescheiden
  • Verweduwd

Leeftijd in gemeente

Leeftijd buurtbewoners

  • 0-15 12%
  • 15-15 16%
  • 25-45 26%
  • 45-65 30%
  • 65+ 15%

Benieuwd naar de waarde van je woning?

Maak dan een afspraak voor een gratis waardebepaling zonder verplichtingen.

Even binnenkijken?

Neem vrijblijvend contact met ons op.