Terug naar overzicht
Kerkrade

Akerstraat 152

€ 299.000, - k.k.

Aan de doorgaande weg ligt deze ruime tussengelegen woning Akerstraat 152 en 152A met 4 slaapkamers en veel bergruimte in de vorm van kelder en vliering en een diepe omsloten tuin. De woning is goed onderhouden en kent een keurige afwerking. Qua verduurzaming heeft de woning uit de jaren ’60 een energielabel C. De ligging is centraal en gunstig ten opzichte van uitvalswegen en op loopafstand van winkels. De woning beschikt over twee huisnummers maar is als één woning ingericht en te gebruiken.

Indeling:
Souterrain: gedeeltelijk onderkelderd en verdeeld in twee ruimtes met o.a. wasmachine-aansluiting en C.V.-opstelling.

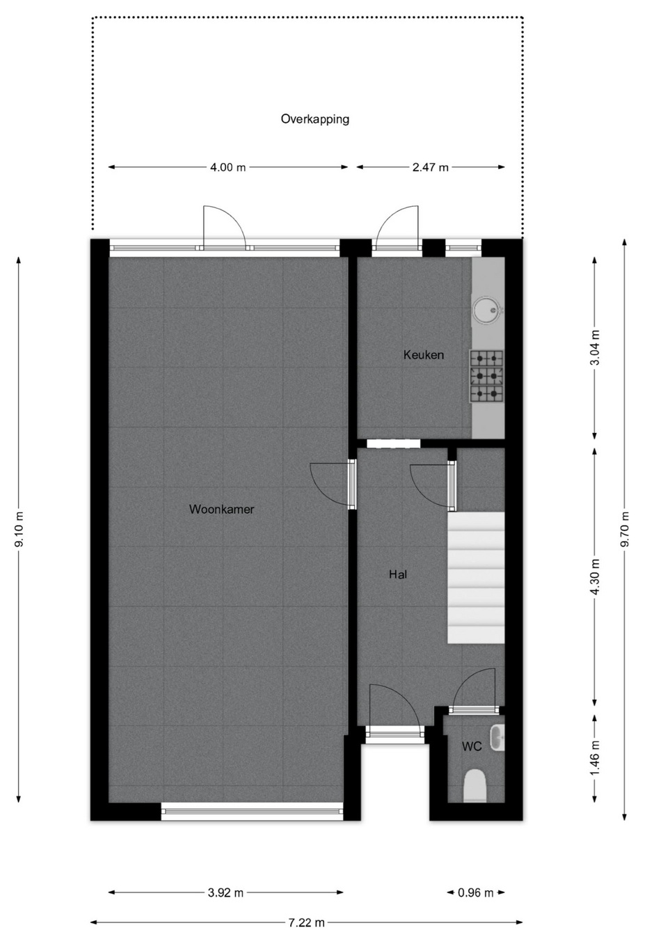
Begane grond: twee entrees, maar één hoofdentree in gebruik, hal met plavuizenvloer, dubbele meterkast, half betegeld toilet, zwevend met fonteintje. Ruime woonkamer, met eventueel werk-, kantoor-, praktijk of winkelfunctie aan huis. De gesloten keuken heef een eenvoudige keuken-installatie met diverse apparatuur waaronder een elektrische kookplaat, afzuigkap, oven en vaatwasser. De koelkast is defect. Vanuit de woonkamer en keuken is de omsloten tuin bereikbaar. Deze is ingericht met gazon, terras en overkapping.

Eerste verdieping: overloop, twee ruime slaapkamers die origineel 4 kamers waren.

Tweede verdieping: vaste trap naar de verdieping met ook een overloop, twee slaapkamers en de badkamer met inloopdouche, badmeubel en 2e toilet.

Derde verdieping: vliering met opbergmogelijkheden.

Bijzonderheden:
* energielabel C;
* grotendeels voorzien van kunststof kozijnen, m.u.v. begane grond voorzijde;
* geheel voorzien van HR++ beglazing;
* dakisolatie; hoofddak 2022 vernieuwd;
* C.V.-combi HR installatie (bj. 2021 in eigendom);
* per direct beschikbaar.
* bestemming wonen.

Aan de doorgaande weg ligt deze ruime tussengelegen woning Akerstraat 152 en 152A met 4 slaapkamers en veel bergruimte in de vorm van kelder en vliering en een diepe omsloten tuin. De woning is goed onderhouden en kent een keurige afwerking. Qua verduurzaming heeft de woning uit de jaren ’60…

Kenmerken

  • Status Beschikbaar
  • Vraagprijs € 299.000,- k.k.
  • Aanvaarding In overleg
  • Soort woonhuis Tussenwoning
  • Soort bouw Bestaande bouw
  • Bouwjaar 1958
  • Soort dak Zadeldak
  • Onderhoud binnen Goed
  • Onderhoud buiten Goed
  • Gebruiksoppervlakte wonen ca. 156 m2
  • Oppervlakte gebouwgebonden ca. 26 m2
  • Overige inpandige ruimte ca. 30 m2
  • Inhoud ca. 657 m3
  • Perceeloppervlakte ca. 245 m2
  • Aantal kamers 5 kamers
  • Aantal slaapkamers 4
  • Aantal badkamers 1 badkamer
  • Badkamervoorzieningen Toilet, wastafelmeubel, inloopdouche
  • Aantal woonlagen 5 woonlagen
  • Energielabel C
  • Verwarming Cv ketel
  • Warm water Cv ketel
  • C.v.-ketel type Gas
  • C.v.-ketel bouwjaar 2021
  • Eigendom Eigendom
  • Parkeerfaciliteiten Openbaar parkeren
  • Garage Geen garage
Meer kenmerken Minder kenmerken

Plattegronden

Statistieken

Cijfers voor de wijk

Burgerlijke staat

  • Gehuwd
  • Ongehuwd
  • Gescheiden
  • Verweduwd

Leeftijd in gemeente

Leeftijd buurtbewoners

  • 0-15 13%
  • 15-15 10%
  • 25-45 22%
  • 45-65 34%
  • 65+ 21%

Benieuwd naar de waarde van je woning?

Maak dan een afspraak voor een gratis waardebepaling zonder verplichtingen.

Even binnenkijken?

Neem vrijblijvend contact met ons op.