Heerlen

Bouwnummer 51, Residentie PromenadePark Blok F, Heerlen

€ 878.750, - v.o.n.

PromenadePark Fase 2

Wonen aan de groene long van het centrum van Heerlen
Na het succes van de eerste fase krijgt het geliefde woongebied een prachtig vervolg met PromenadePark Fase 2. Hier woon je rustig en comfortabel, direct aan het groen, maar met alle levendigheid van het centrum van Heerlen op loopafstand.
PromenadePark combineert stedelijk wonen met een parkachtige setting. Vanuit je woning kijk je uit over groen, terwijl winkels, horeca, cultuur en het nieuwe station in Maankwartier zich om de hoek bevinden. Hier ervaar je dagelijks de perfecte balans tussen rust en dynamiek. Een hoogwaardige woonomgeving waar rust, ruimte en stedelijke voorzieningen op vanzelfsprekende wijze samenkomen.
PromenadePark Fase 2 bestaat uit een gevarieerd aanbod van 50 moderne appartementen verdeeld over 3 gebouwen, ontworpen met oog voor licht, ruimte en wooncomfort.

De Schinkel II (Blok D)
Het eerste complex 'De Schinkel II', gelegen aan het Schinkelplantsoen bestaat uit 34 energiezuinige en levensloopbestendige appartementen van circa 80 m² tot 100 m² (excl. buitenruimtes). De appartementen zijn praktisch ingedeeld en beschikken over een woongedeelte met ruimte voor een open keuken. Standaard beschikken de appartementen over 2 slaapkamers, een badkamer, een separaat 2e toilet en een balkon. De buitenruimtes kijken voor het grootste gedeelte uit op het nieuw aan te leggen Schinkelplantsoen en zijn gemiddeld 10 m². Er is voldoende bergruimte voorzien. De verkoopprijs begint bij € 420.000,- VON (vrij op naam). Parkeerplaatsen worden achterom aangelegd en zijn enkel bereikbaar voor bewoners.

De Schinkel II (Blok E)
Eveneens in 'De Schinkel II' ligt blok E gelegen tussen het Schinkelplantsoen en de Promenade, bestaande uit 20 appartementen. De appartementen starten vanaf ca. 88 m² (excl. buitenruimtes). De meeste appartementen beschikken over 2 slaapkamers, een badkamer, een separaat 2e toilet en een balkon. De buitenruimtes kijken voor het grootste gedeelte uit op het nieuw aan te leggen Schinkelplantsoen en zijn gemiddeld 12 m². Er is voldoende bergruimte voorzien. De verkoopprijs begint bij ca. € 425.000,- VON (vrij op naam). Parkeerplaatsen worden achterom aangelegd en zijn enkel bereikbaar voor bewoners.

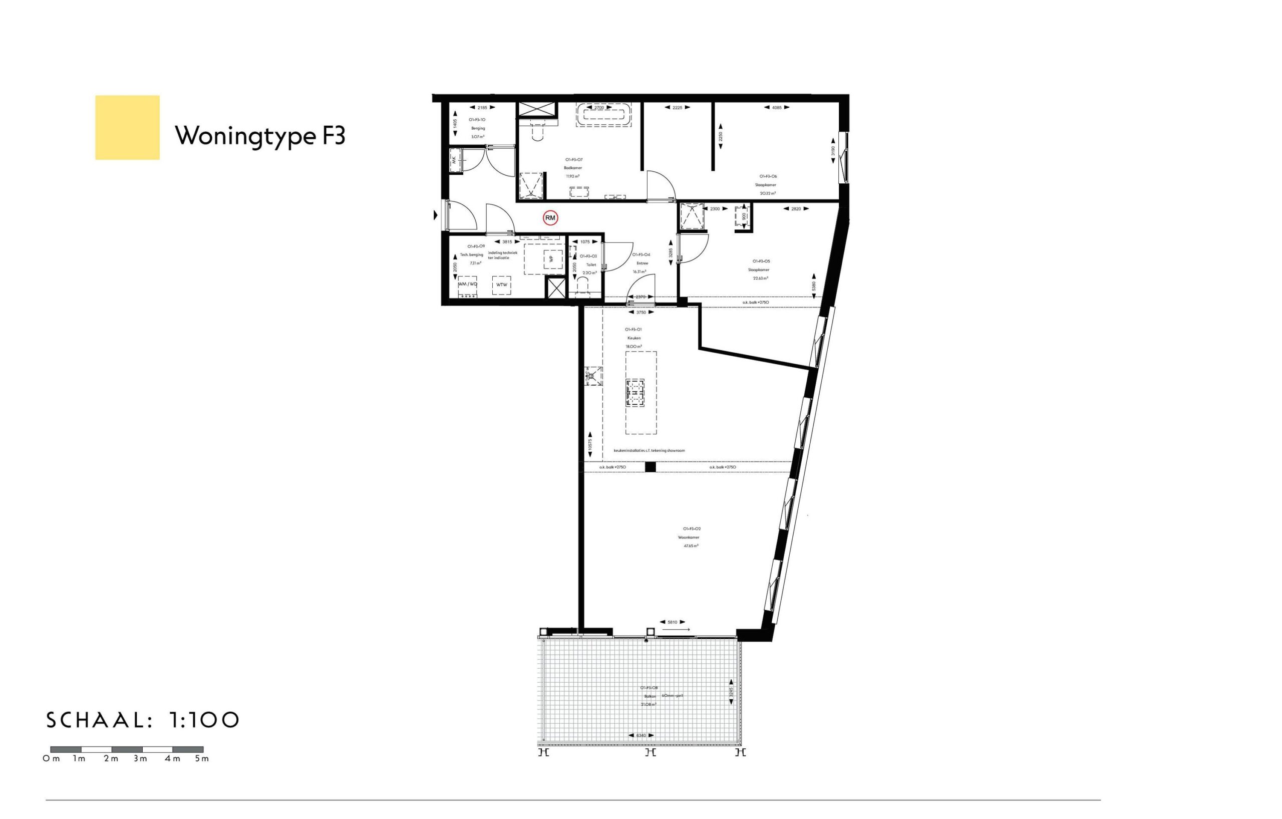
Residentie PromenadePark (Blok F)
Het sluitstuk van PromenadePark is “Residentie PromenadePark" Blok F. Deze residentie ligt op een prominente locatie aan de Promenade. Je profiteert hier van twee werelden: prachtig uitzicht en het mogelijk maken van verschillende woonwensen. Het gebouw bestaat uit 15 riante appartementen en één penthouse. De appartementen starten vanaf ca. 130 m² tot het penthouse van maar liefst 236 m² (excl. buitenruimtes). De balkons/terrassen variëren van ca. 21 m² tot 175 m². Ieder appartement is voorzien van één of twee parkeerplaatsen in de ondergrondse parkeergarage. De indeling van de appartementen is deels nog zelf te kiezen. In een persoonlijk gesprek met een van onze makelaars kan bekeken worden welke indelingsmogelijkheden er voor u zijn. De verkoopprijs begint bij € 732.000,- VON (vrij op naam).

Bijzonderheden:
• Gasloos en zeer goed geïsoleerd
• Full-electric met warmtepomp en boiler
• Complete badkamer inclusief tegelwerk en sanitair (blok D en E), casco badkamer blok F
• SWK garantie

Interesse?
Meld u zich bij de makelaar en vraag de volledige informatieset aan met daarbij alle tekeningen, technische omschrijving, contractstukken, prijslijst etc. Tevens ontvangt u dan het inschrijfformulier waarop u uw interesse in specifieke bouwnummer(s) kenbaar kunt maken. U kunt zich in de eerste ronde inschrijven t/m 6 maart 12:00 waarna de eerste toewijzing op kavelniveau zal plaatsvinden.

PromenadePark Fase 2 Wonen aan de groene long van het centrum van Heerlen Na het succes van de eerste fase krijgt het geliefde woongebied een prachtig vervolg met PromenadePark Fase 2. Hier woon je rustig en comfortabel, direct aan het groen, maar met alle levendigheid van het centrum van Heerlen op loopafstand. PromenadePark combineert stedelijk wonen met een parkachtige setting. Vanuit je woning kijk je uit over groen, terwijl winkels, horeca, cultuur en het nieuwe station in Maankwartier zich om de hoek bevinden. Hier ervaar je dagelijks de perfecte balans tussen rust en dynamiek. Een hoogwaardige woonomgeving waar rust, ruimte…

Kenmerken

  • Status Onder optie
  • Koopsom € 878.750 v.o.n.
  • Soort bouw Nieuwbouw
  • Type Appartement
  • Bouwjaar 2027
  • Aanvaarding In overleg
  • Onderhoud binnen Uitstekend
  • Onderhoud buiten Uitstekend
  • Gebruikersoppervlakte 153
  • Start verkoop n.t.b.
  • Aantal woonlagen 1 woonlagen
  • Voorzieningen Lift, balansventilatie
  • Tuintype Geen tuin
Meer kenmerken Minder kenmerken

Plattegronden

Statistieken

Cijfers voor de wijk

Burgerlijke staat

  • Gehuwd
  • Ongehuwd
  • Gescheiden
  • Verweduwd

Leeftijd in gemeente

Leeftijd buurtbewoners

Gratis woningcheck

Maak dan een afspraak voor een gratis waardebepaling zonder verplichtingen.

Geïnteresseerd?

Neem contact op