Heerlen

Park Hoogveld (woningen-appartementen-bouwkavels)

€ 196.700 t/m € 685.000 v.o.n.

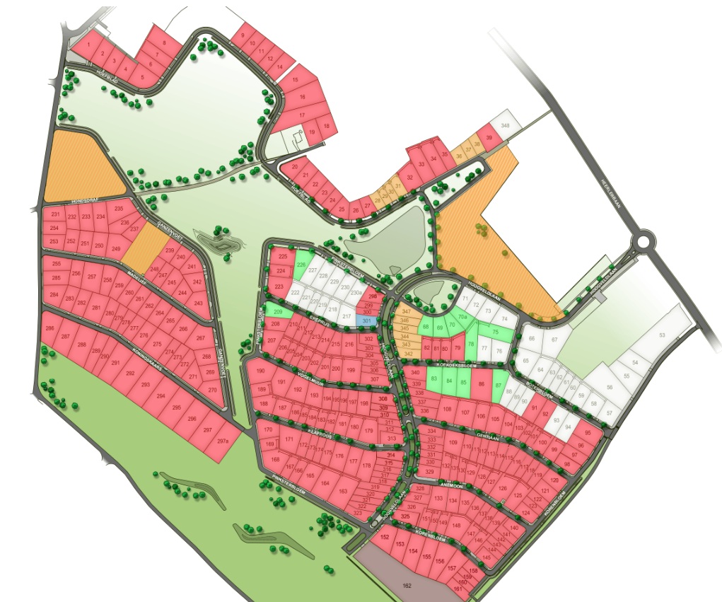
Aan de zuidelijke rand van Heerlen, in een typisch stukje van het glooiend Limburgse heuvelland, ligt Park Hoogveld.
Park Hoogveld biedt u het beste uit twee werelden: de levendigheid van het talrijke groen in en om de woonwijk en stijlvolle moderne woningen.

In Park Hoogveld kunnen wij u momenteel diverse bouwkavels en fraaie projectmatige woningen/appartementen aanbieden.

Vrije bouwkavels:
In Park Hoogveld worden over het nieuwbouwplan verspreid bouwkavels uitgegeven. Hierop kunt u zelf, samen met de architect van uw keuze, uw droomhuis realiseren. Hoge kwaliteit en variatie in architectuur zijn de pijlers waarop Park Hoogveld wordt ingericht. Dat geldt ook voor de woningen die in eigen beheer worden gebouwd. Het beeldkwaliteitsplan geeft hiervoor duidelijke richtlijnen en waarborgt de nodige samenhang en kwaliteit.
Wij kunnen u diverse kavels aanbieden variërend in grootte van 467-859 m² met prijzen vanaf € 184.125,- v.o.n.

Projectmatige woningbouw:
Voor de diverse woningen in het aanbod kijkt u verder op objectniveau. Er is keuze uit een grote diversiteit aan woningtypes; Halfvrijstaande woningen, fraaie vrijstaande woningen en zeer luxe villa’s, waarvan een deel ook in potentie levensloopbestendig. Aan de zuidoostflank boden we recent 16 luxe appartementen aan in het Huys van Emsenrode, inmiddels allemaal verkocht maar meer appartementen zijn in ontwikkeling.
Dit plan is uniek van opzet en de woningen worden gerealiseerd op mooie ruime percelen.

Vraag uw hypotheekadviseur naar de gunstige financieringsvoorwaarden van woningen met label A+++!

Aan de zuidelijke rand van Heerlen, in een typisch stukje van het glooiend Limburgse heuvelland, ligt Park Hoogveld. Park Hoogveld biedt u het beste uit twee werelden: de levendigheid van het talrijke groen in en om de woonwijk en stijlvolle moderne woningen. In Park Hoogveld kunnen wij u momenteel diverse bouwkavels en fraaie projectmatige woningen/appartementen aanbieden. Vrije bouwkavels: In Park Hoogveld worden over het nieuwbouwplan verspreid bouwkavels uitgegeven. Hierop kunt u zelf, samen met de architect van uw keuze, uw droomhuis realiseren. Hoge kwaliteit en variatie in architectuur zijn de pijlers waarop Park Hoogveld wordt ingericht. Dat geldt ook voor…

Kenmerken

  • Status Beschikbaar
  • Koopsom € 196.700 / € 685.000 v.o.n.
  • Gebruikersoppervlakte va. 1 m2 t/m 178 m2
  • Inhoud 1 m3 t/m 1000 m3
  • Start verkoop 01-01-2020
  • Aantal kavels 94
Meer kenmerken Minder kenmerken
Nieuwbouwprojecten

Objecttypen

Beschikbaar
Bouwkavels Park Hoogveld
€ 184.125 ,-
2025012_GD_Hoogveldlaan_6_Woningen (1) Beschikbaar
6 cascadewoningen Hoogveldlaan
€ 552.500 ,-
  • Woonopp. va. 171 m²
  • Slaapkamers 4
Beschikbaar
Cascadewoningen Hoogveldlaan
€ 544.500 ,-
  • Woonopp. va. 171 m²
  • Slaapkamers 4
Beschikbaar
Geschakelde split-level woningen Koekoeksbloem
€ 507.500 ,-
  • Woonopp. va. 130 m²
  • Slaapkamers 3
Bouwnummer
Status
Woonoppervlakte
Slaapkamers
Prijs
  • Bouwnummer 209, Pinksterbloem, Heerlen
    Bouwnummer 209, Pinksterbloem, Heerlen
    Onder optie
    Onder optie
    Prijs
    € 228.800, -
  • Bouwnummer 226, Pinksterbloem, Heerlen
    Bouwnummer 226, Pinksterbloem, Heerlen
    Beschikbaar
    Beschikbaar
    Prijs
    € 280.000, -
  • Bouwnummer 70, Hoogveldlaan, Heerlen
    Bouwnummer 70, Hoogveldlaan, Heerlen
    Onder optie
    Onder optie
    Prijs
    € 191.600, -
  • Bouwnummer 70a, Hoogveldlaan, Heerlen
    Bouwnummer 70a, Hoogveldlaan, Heerlen
    Onder optie
    Onder optie
    Prijs
    € 184.125, -
  • Bouwnummer 75, Boterbloem, Heerlen
    Bouwnummer 75, Boterbloem, Heerlen
    Beschikbaar
    Beschikbaar
    Prijs
    € 322.125, -
  • Bouwnummer 78, Koekoeksbloem, Heerlen
    Bouwnummer 78, Koekoeksbloem, Heerlen
    Beschikbaar
    Beschikbaar
    Prijs
    € 308.625, -
  • Bouwnummer 83, Koekoeksbloem, Heerlen
    Bouwnummer 83, Koekoeksbloem, Heerlen
    Onder optie
    Onder optie
    Prijs
    € 239.750, -
  • Bouwnummer 84, Koekoeksbloem, Heerlen
    Bouwnummer 84, Koekoeksbloem, Heerlen
    Beschikbaar
    Beschikbaar
    Prijs
    € 272.250, -
  • Bouwnummer 85, Koekoeksbloem, Heerlen
    Bouwnummer 85, Koekoeksbloem, Heerlen
    Onder optie
    Onder optie
    Prijs
    € 272.250, -
  • Bouwnummer 87, Koekoeksbloem, Heerlen
    Bouwnummer 87, Koekoeksbloem, Heerlen
    Beschikbaar
    Beschikbaar
    Prijs
    € 276.750, -
  • Bouwnummer 92, Boterbloem, Heerlen
    Bouwnummer 92, Boterbloem, Heerlen
    Verkocht onder voorbehoud
    Verkocht onder voorbehoud
    Prijs
    € 196.700, -
Bouwnummer
Status
Woonoppervlakte
Slaapkamers
Prijs
  • Bouwnummer 342, 6 cascadewoningen Hoogveldlaan, Heerlen
    Bouwnummer 342, 6 cascadewoningen Hoogveldlaan, Heerlen
    Onder optie
    Onder optie
    Woonoppervlakte
    178 m2
    Slaapkamers
    4
    Prijs
    € 582.500, -
  • Bouwnummer 343, 6 cascadewoningen Hoogveldlaan, Heerlen
    Bouwnummer 343, 6 cascadewoningen Hoogveldlaan, Heerlen
    Onder optie
    Onder optie
    Woonoppervlakte
    171 m2
    Slaapkamers
    4
    Prijs
    € 555.000, -
  • Bouwnummer 344, 6 cascadewoningen Hoogveldlaan, Heerlen
    Bouwnummer 344, 6 cascadewoningen Hoogveldlaan, Heerlen
    Verkocht onder voorbehoud
    Verkocht onder voorbehoud
    Woonoppervlakte
    171 m2
    Slaapkamers
    4
    Prijs
    € 565.000, -
  • Bouwnummer 345, 6 cascadewoningen Hoogveldlaan, Heerlen
    Bouwnummer 345, 6 cascadewoningen Hoogveldlaan, Heerlen
    Beschikbaar
    Beschikbaar
    Woonoppervlakte
    171 m2
    Slaapkamers
    4
    Prijs
    € 552.500, -
  • Bouwnummer 346, 6 cascadewoningen Hoogveldlaan, Heerlen
    Bouwnummer 346, 6 cascadewoningen Hoogveldlaan, Heerlen
    Onder optie
    Onder optie
    Woonoppervlakte
    171 m2
    Slaapkamers
    4
    Prijs
    € 557.500, -
  • Bouwnummer 347, 6 cascadewoningen Hoogveldlaan, Heerlen
    Bouwnummer 347, 6 cascadewoningen Hoogveldlaan, Heerlen
    Verkocht onder voorbehoud
    Verkocht onder voorbehoud
    Woonoppervlakte
    178 m2
    Slaapkamers
    4
    Prijs
    € 599.500, -
Bouwnummer
Status
Woonoppervlakte
Slaapkamers
Prijs
  • Bouwnummer 301, Cascadewoningen Hoogveldlaan, Heerlen
    Bouwnummer 301, Cascadewoningen Hoogveldlaan, Heerlen
    Verkocht onder voorbehoud
    Verkocht onder voorbehoud
    Woonoppervlakte
    178 m2
    Slaapkamers
    4
    Prijs
    € 575.000, -
Statistieken

Cijfers voor de wijk

Burgerlijke staat

  • Gehuwd 595
  • Ongehuwd 450
  • Gescheiden 85
  • Verweduwd 200

Leeftijd in gemeente

  • 0-15 13%
  • 15-15 11%
  • 25-45 24%
  • 45-65 31%
  • 65+ 22%

Leeftijd buurtbewoners

  • 0-15 12%
  • 15-15 9%
  • 25-45 15%
  • 45-65 29%
  • 65+ 34%

Gratis woningcheck

Maak dan een afspraak voor een gratis waardebepaling zonder verplichtingen.

Neem contact op

Geïnteresseerd?

Neem contact op