Wittem

Bouwnummer 1, Vrijstaande villa, Wittem

€ 625.000, - v.o.n.

NATUURLIJK WONEN IN PARTIJ
5 luxe woningen aan de Van Cosselaerstraat, waar modern wooncomfort en Limburgse rust perfect samenkomen.

Projectomschrijving
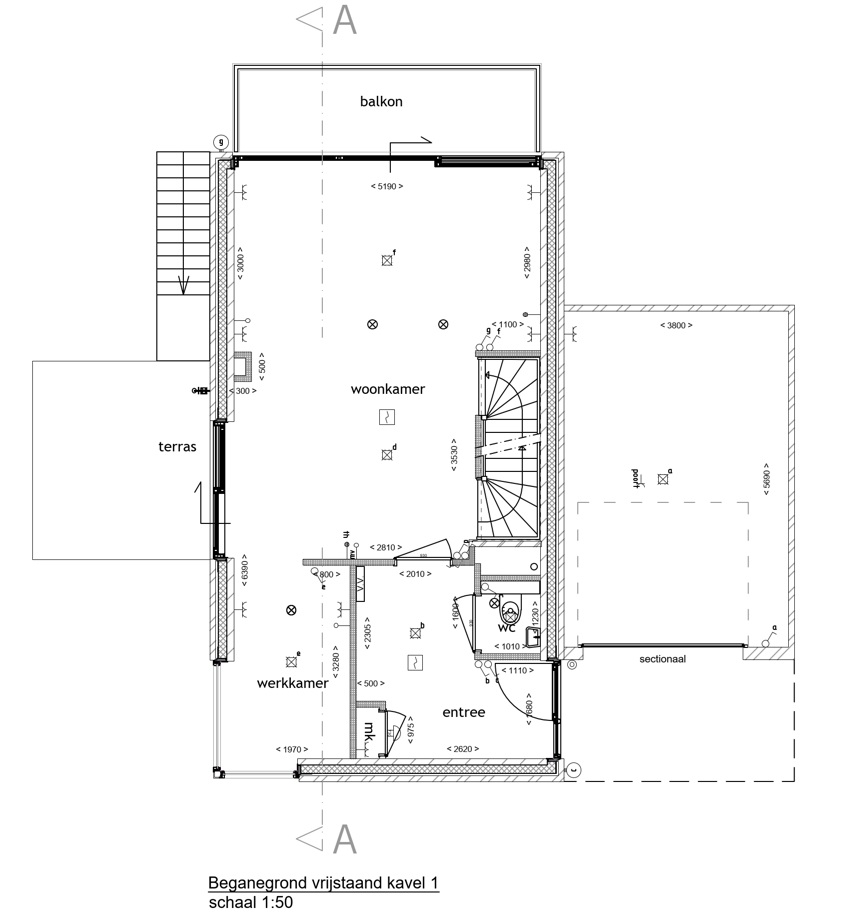
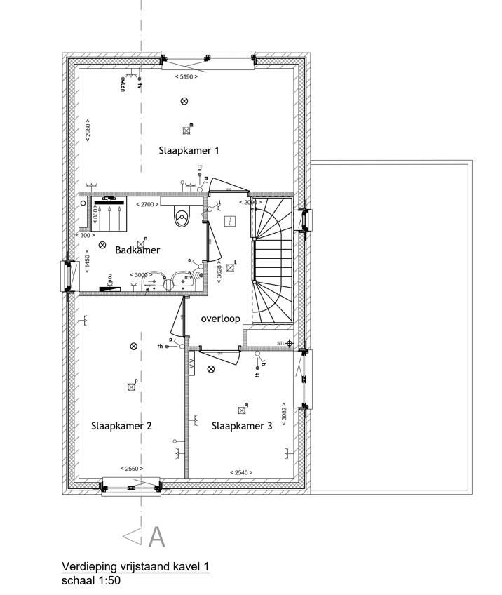
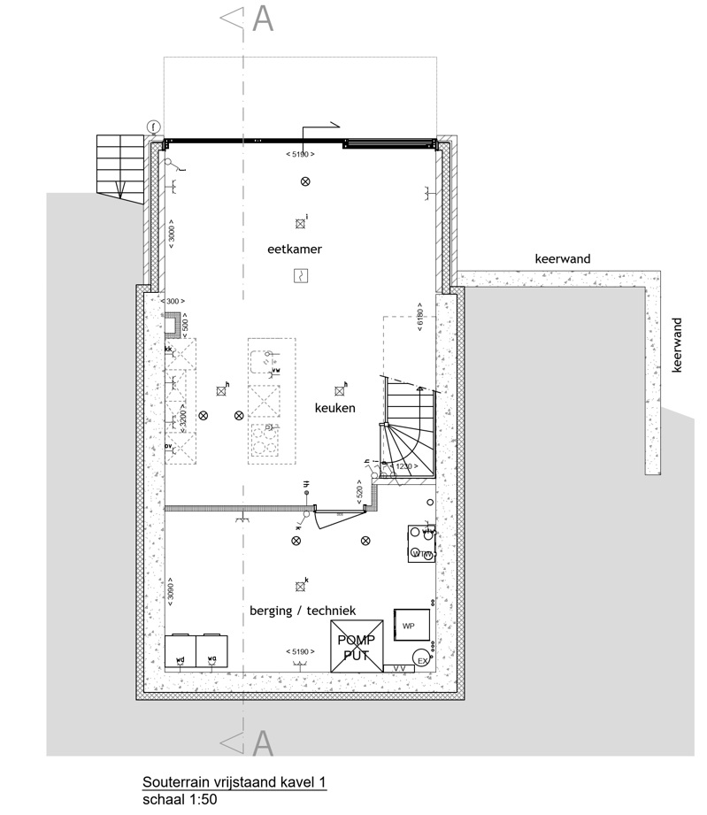
De vrijstaande woning (kavel 1) heeft een moderne uitstraling met strakke lichte gevels en een plat dak. Deze woning beschikt over een royale leefkeuken die direct aansluit op de tuin, een ruime woonkamer, een werkkamer en een ruime garage op straatniveau. Op de verdieping bevinden zich drie ruime slaapkamers en een badkamer.
De vier halfvrijstaande woningen (kavels 2 t/m 5) krijgen een warme, traditionele uitstraling met roodbruine gevels en een klassiek zadeldak. De begane grond beschikt over een ruime living, fijne bijkeuken en prettige tuin. Op de verdieping bevinden zich standaard drie slaapkamers en een badkamer. De zolder is een grote open ruimte met indelingsvrijheid. Daarnaast zijn er diverse uitbreidingsmogelijkheden: Je kunt kiezen voor een garage, een erker of een aanbouw aan de achterzijde. Ook is het mogelijk om een extra slaapkamer met badkamer op de begane grond te realiseren. Kortom, deze woningen bieden volop flexibiliteit en keuzevrijheid om uw nieuwe huis volledig naar eigen wens in te richten.

Wonen in het groene hart van het Limburgse heuvelland
Aan de rand van het charmante kerkdorp Partij, aan de Van Cosselaerstraat, verrijst een kleinschalig nieuwbouwproject bestaande uit 1 vrijstaande woning en 4 half vrijstaande woningen welke een modern wooncomfort naadloos combineert met de rust en charme van het Limburgse heuvelland. De straat kent weinig verkeer en ademt de sfeer van het Zuid-Limburgse land. Hier woon je in een rustige, groene omgeving met de luxe van alle voorzieningen op korte afstand.
Wonen in Partij betekent dagelijks genieten van het Limburgse landschap. Vanuit je voordeur wandel of fiets je zo het groen in. In elk seizoen nodigen de heuvels, beken en bossen uit tot ontspanning en beleving.
Tegelijkertijd ben je slechts enkele minuten verwijderd van alle voorzieningen die het bruisende dorp Gulpen te bieden heeft. Hierdoor is voor gezinnen de locatie ook ideaal.
Daarnaast biedt de omgeving een gezellig aanbod van cafés en restaurants, waaronder verschillende eetgelegenheden die streekgebonden specialiteiten serveren, perfect voor wie van lekker en lokaal eten houdt.
Partij kent een uitstekende bereikbaarheid. Met de auto rijd je binnen circa tien minuten de A79 op richting Heerlen of Maastricht. Daarnaast bereik je Maastricht ook rechtstreeks via de N278, in ongeveer twintig minuten. Het openbaar vervoer is eveneens goed geregeld: er zijn rechtstreekse busverbindingen naar onder andere Maastricht, Gulpen, Vaals en Heerlen, met een bushalte op loopafstand. Voor treinreizigers liggen de stations Valkenburg en Heerlen nabij en zijn eenvoudig bereikbaar per bus of auto.

Kenmerken:
- Energielabel A+++
- Ruime parkeermogelijkheid
- Inclusief keukencheque
- Natuurlijk wonen in het Heuvelland
- Inclusief compleet sanitair
- Inclusief Woningborg garantie

Pre-sale:
Het project bevindt zich momenteel in de pre-sale, we hopen op afzienbare termijn met de definitieve verkoop te kunnen starten. Om een voorsprong te hebben op kandidaten die zich later melden, vragen wij u om u alvast in te schrijven middels het inschrijfformulier dat u bij de makelaar kunt opvragen. U wordt bij de definitieve voorrang bij gelijke geschiktheid dan met voorrang behandeld.
Het formulier is op te vragen bij de makelaar.

De verkoopprijzen zijn als volgt:
Kavel 1 - 625.000 euro v.o.n. - perceel 461 m2 - woonoppervlakte 156 m2 + garage 20 m2
Kavel 2 - 549.000 euro v.o.n. - perceel 485 m2 - woonoppervlakte 156 m2
Kavel 3 - 559.000 euro v.o.n. - perceel 490 m2 - woonoppervlakte 156 m2
Kavel 4 - 575.000 euro v.o.n. - perceel 470 m2 - woonoppervlakte 156 m2
Kavel 5 - 535.000 euro v.o.n. - perceel 274 m2 - woonoppervlakte 156 m2

NATUURLIJK WONEN IN PARTIJ 5 luxe woningen aan de Van Cosselaerstraat, waar modern wooncomfort en Limburgse rust perfect samenkomen. Projectomschrijving De vrijstaande woning (kavel 1) heeft een moderne uitstraling met strakke lichte gevels en een plat dak. Deze woning beschikt over een royale leefkeuken die direct aansluit op de tuin, een ruime woonkamer, een werkkamer en een ruime garage op straatniveau. Op de verdieping bevinden zich drie ruime slaapkamers en een badkamer. De vier halfvrijstaande woningen (kavels 2 t/m 5) krijgen een warme, traditionele uitstraling met roodbruine gevels en een klassiek zadeldak. De begane grond beschikt over een ruime living,…

Kenmerken

  • Status Beschikbaar
  • Koopsom € 625.000 v.o.n.
  • Soort bouw Nieuwbouw
  • Type Woonhuis
  • Bouwjaar 2026
  • Aanvaarding In overleg
  • Onderhoud binnen Uitstekend
  • Onderhoud buiten Uitstekend
  • Gebruikersoppervlakte 156
  • Start verkoop n.t.b.
  • Aantal woonlagen 3 woonlagen
  • Voorzieningen Zonnepanelen, balansventilatie
  • Isolatie Dakisolatie, muurisolatie, vloerisolatie, volledig geisoleerd
  • Verwarming Vloerverwarming gedeeltelijk, warmtepomp
  • Warm water Elektrische boiler eigendom
  • Tuintype Tuin rondom
  • Hoofdtuin Tuin rondom
  • Woonhuis soort Eengezinswoning
Meer kenmerken Minder kenmerken

Plattegronden

Statistieken

Cijfers voor de wijk

Burgerlijke staat

  • Gehuwd
  • Ongehuwd
  • Gescheiden
  • Verweduwd

Leeftijd in gemeente

Leeftijd buurtbewoners

Gratis woningcheck

Maak dan een afspraak voor een gratis waardebepaling zonder verplichtingen.

Geïnteresseerd?

Neem contact op