Montfort

Waarderweg 2, Montfort

€ 1 k.k.

Gelegen in de dorpskern van Montfort, bijzonder ruim en goed onderhouden geschakeld woonpand met bedrijfsruimte op royaal perceel. Bestaande uit huisnummer 2, 2A & 2B.

Dit unieke pand bestaat uit twee geschakelde woningen die gezamenlijk worden verkocht en biedt daardoor uitzonderlijk veel woonruimte, flexibiliteit en mogelijkheden. Denk aan dubbele bewoning, (pré-)mantelzorg, werken aan huis of een zeer royaal gezinshuis. Daarnaast is er een grote loods voor zakelijk gebruik. Wonen én werken op één perceel. De totale perceel oppervlakte bedraagt circa 1.105 m² en het totale woonoppervlakte is zeer royaal.

De grootste woning is in 1999/2000 door de huidige eigenaren op iedere verdieping aangebouwd en volledig gemoderniseerd, wat heeft geresulteerd in een comfortabele woning met energielabel A. Voor het realiseren van een (pré-)mantelzorgwoning van maximaal 100 m² in de (achter-)zijtuin is reeds toestemming verleend door de gemeente Roerdalen (uitgebreide informatie beschikbaar via de makelaar).

Indeling – woning I (hoofdwoning)

Souterrain

Praktische provisiekelder (ca. 11 m²), bereikbaar vanuit de hal, met een stahoogte van ca. 2,00 meter. Ideaal voor opslag en voorraad.

Begane grond
Entree/hal met tegelvloer, trapopgang, meterkast en toegang tot kelder, woonkamer en toiletruimte. Geheel betegeld gastentoilet met toilet en fonteintje.
Zeer royale woonkamer met doorlopende tegelvloer en vloerverwarming. Aan de achterzijde is in 2000 een aanbouw gerealiseerd, waardoor een indrukwekkende leefruimte is ontstaan. De woonkamer is voorzien van een houtkachel en airco-installatie (2023) en staat via een schuifpui in directe verbinding met het terras en de tuin.
De halfopen keuken is uitgerust met een hoekopstelling en beschikt over een inductiekookplaat, afzuigkap, oven, vaatwasser, koelkast, 1,5 spoelbak en diverse kastruimte. Aansluitend bevindt zich een portaal met toegang tot de achtertuin en de bijkeuken.
De bijkeuken (ca. 8 m²) is voorzien van witgoedaansluitingen.
De totale oppervlakte van woonkamer en keuken bedraagt ca. 70 m².

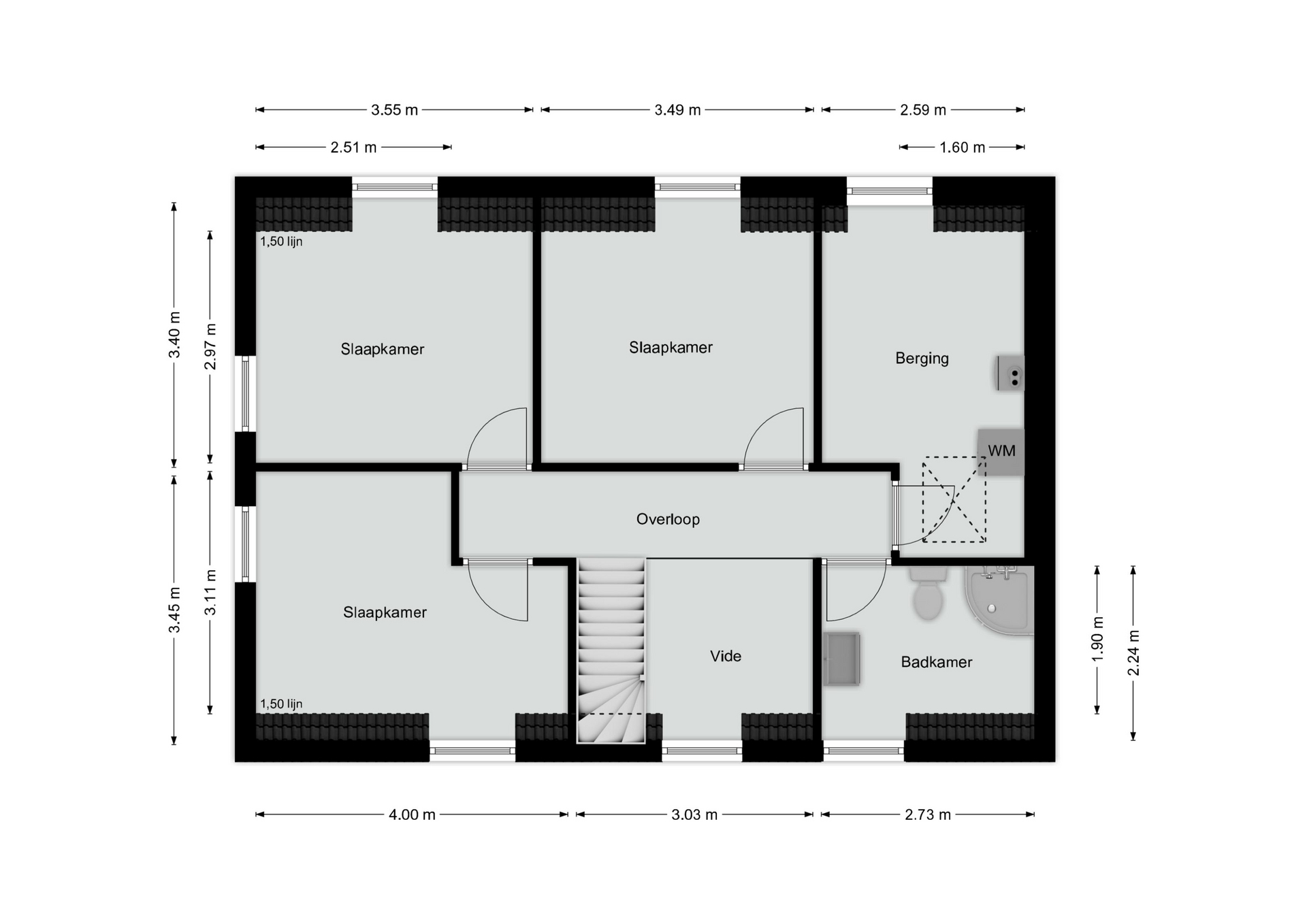
Eerste verdieping
Overloop met toegang tot drie zeer ruime slaapkamers (ca. 26 m², 16 m² en 13 m²), allen voorzien van een laminaatvloer. De hoofdslaapkamer beschikt over een airco-installatie (2023).
Geheel betegelde badkamer (ca. 7 m²) met ligbad, douche, wastafelmeubel en zwevend toilet.

Tweede verdieping
Riante zolderverdieping (ca. 33 m²) met volop mogelijkheden, zoals het realiseren van extra slaapkamers of een hobby-/werkkamer. Aparte technische ruimte met cv-installatie en praktische schuifkasten in de knieschotten.

Indeling – woning II

Begane grond
Entree/hal met tegelvloer, trapopgang, garderobenis, meterkast en toegang tot woonkamer, keuken, berging en toiletruimte. Deels betegeld gastentoilet met fonteintje.
Berging (ca. 5 m²), ideaal voor extra opslag.
L-vormige woonkamer (ca. 26 m²) met tegelvloer, vloerverwarming en airco-installatie (2023). Via schuifpui toegang tot de achtertuin.
Gesloten keuken (ca. 12 m²) met hoekopstelling, voorzien van koelkast, gaskookplaat, afzuiging, oven, magnetron, vaatwasser en veel kastruimte. Vanuit de keuken toegang tot een overdekt terras.

Eerste verdieping
Overloop met vide, toegang tot drie slaapkamers (allen ca. 11 m²) voorzien van laminaatvloeren en dakkapellen. De hoofdslaapkamer beschikt over airco (2023).
Betegelde badkamer (ca. 5 m²) met douche, wastafelmeubel en toilet.
Ruime berging (ca. 10 m²) met witgoedaansluitingen en cv-opstelling (eigendom, 1997).

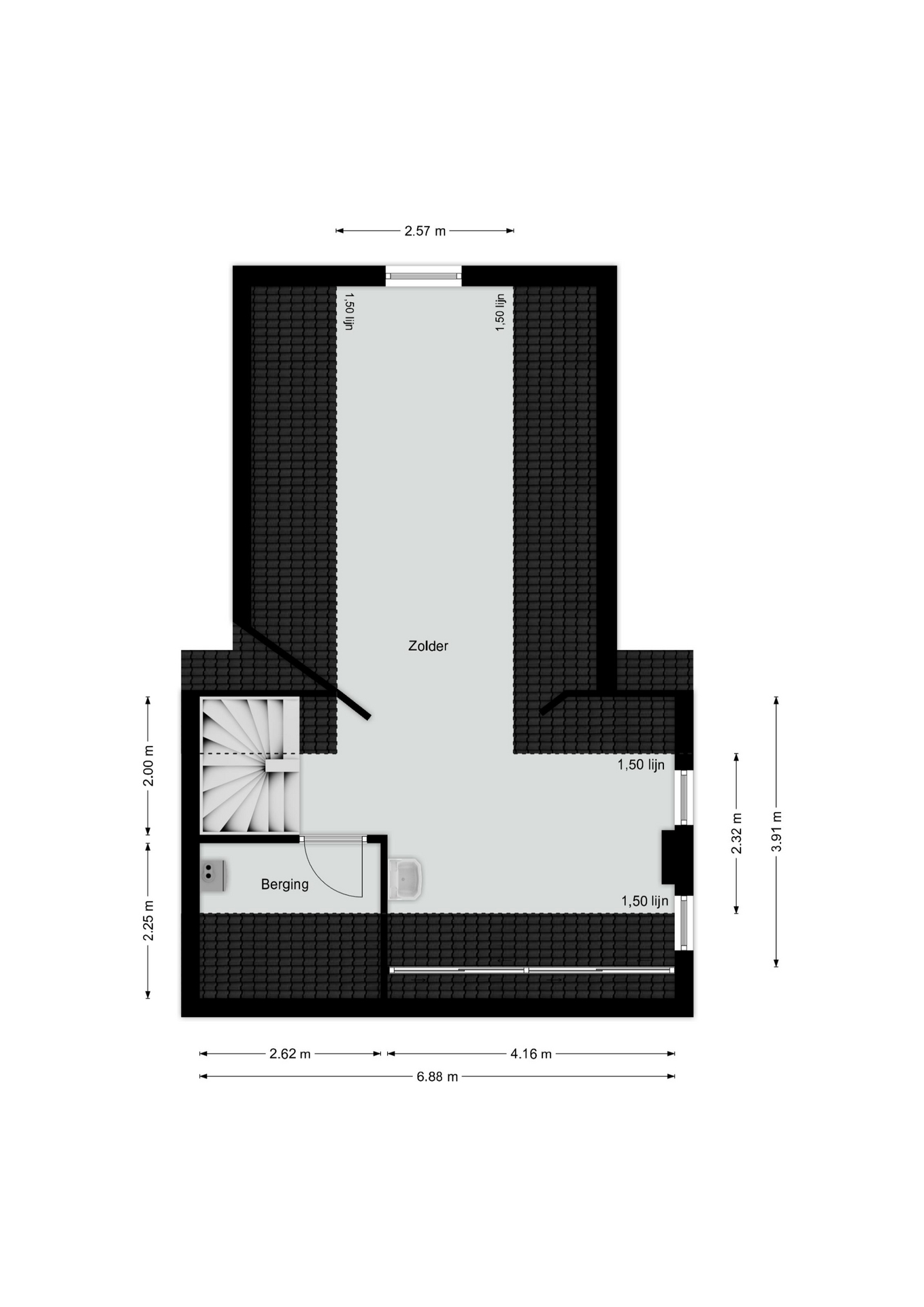
Zolder
Via mangat bereikbare bergzolder.

Tuin
De tuinen vormen samen een uitzonderlijk royaal en diep perceel, grotendeels omsloten en zuidoostelijk georiënteerd, waardoor u de gehele dag van de zon kunt genieten. De tuin is ingericht met meerdere terrassen, gazon, beplanting en een overdekt terras. Ideaal voor gezinnen, tuinliefhebbers of het realiseren van aanvullende bebouwing zoals een mantelzorgwoning.

Indeling – Loods

Daarnaast beschikt het object over een multifunctionele loods, ideaal voor een bedrijf aan huis. De loods is verdeeld over twee etages. Op de begane grond bevindt zich een ruime werkruimte, die momenteel is ingericht met diverse machines en opslag, en tevens mogelijkheden biedt voor het realiseren van een kantine.

De eerste etage, die op straatniveau ligt, is verdeeld in twee ruimtes. Via een entree met een groot schuifkozijn kom je binnen in een lichte ruimte die zich uitstekend leent als kantoor, kapperszaak, nagelsalon of andere dienstverlenende activiteiten. Op deze etage zijn een apart toilet en een douche aanwezig. Vanuit deze ruimte is er bovendien toegang tot de zolder, wat extra opslag- of gebruiksmogelijkheden biedt.

Algemeen
– Verkoop betreft twee geschakelde woningen als één pand
– Zeer royaal perceel van ca. 1.105 m²
– Meerdere woonconcepten mogelijk (dubbele bewoning, mantelzorg, werken aan huis)
– Grotendeels kunststof kozijnen met isolerende beglazing
– Dak hoofdwoning vernieuwd en geïsoleerd in 2000 (Unidek-platen)
– In 2023 zijn meerdere airco-installaties geplaatst
– Uitstekende ligging t.o.v. A2 en A73
– Roermond en Echt binnen 15 minuten bereikbaar
– Gelegen in de dorpskern van Montfort

Omgeving
Montfort is een sfeervolle kern van de gemeente Roerdalen met circa 3.500 inwoners. Het dorp beschikt over een rijk verenigingsleven en diverse voorzieningen zoals een basisschool, supermarkt, bakker, slager, huisartsenpraktijk, tandarts, sporthal en openbaar zwembad. Roermond met haar uitgebreide voorzieningen ligt op korte afstand. Dankzij de gunstige ligging nabij de A2 en A73 zijn steden als Maastricht, Eindhoven, Venlo en Düsseldorf binnen circa 30 autominuten bereikbaar.

Gelegen in de dorpskern van Montfort, bijzonder ruim en goed onderhouden geschakeld woonpand met bedrijfsruimte op royaal perceel. Bestaande uit huisnummer 2, 2A & 2B. Dit unieke pand bestaat uit twee geschakelde woningen die gezamenlijk worden verkocht en biedt daardoor uitzonderlijk veel woonruimte, flexibiliteit en mogelijkheden. Denk aan dubbele bewoning,…

Kenmerken

  • Status Beschikbaar
  • Koopprijs € 1 k.k.
  • Servicekosten -
  • Hoofdfunctie Bedrijfsruimte
  • Soort bouw Bestaande bouw
  • Bouwjaar 1980
  • Energielabel A
  • Onderhoud binnen Goed
  • Onderhoud buiten Redelijk tot goed
Meer kenmerken Minder kenmerken

Plattegronden

Statistieken

Cijfers voor de wijk

Burgerlijke staat

  • Gehuwd
  • Ongehuwd
  • Gescheiden
  • Verweduwd

Leeftijd in gemeente

Leeftijd buurtbewoners

  • 0-15 16%
  • 15-15 9%
  • 25-45 23%
  • 45-65 33%
  • 65+ 20%

Even binnenkijken?

Neem vrijblijvend contact met ons op.

Geïnteresseerd?

Neem contact op